EasyManua.ls Logo

Asko WM70.C - Page 24

Asko WM70.C
38 pages
Print Icon
To Next Page IconTo Next Page
To Next Page IconTo Next Page
To Previous Page IconTo Previous Page
To Previous Page IconTo Previous Page
Loading...
Service manual WM70.C
24
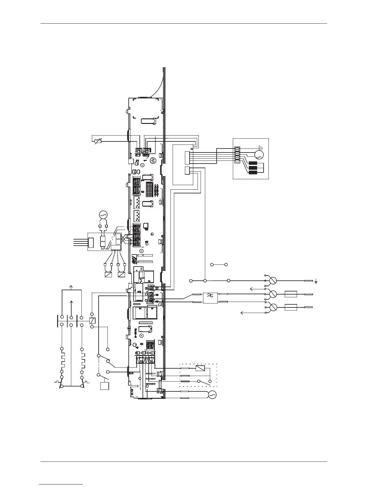
Wiring diagram WM70.C WC US/CA
This document must not be copied without
our written pemission, and the contents
thereof must not be imparted to a third party
nor be used for any unauthorized purpose.
Contravention will be prosecuted.
Asko Appliance AB
CIRCUIT DIAGRAM WM70.C WC US/CA
80 893 65 - 01
WIRES IN ALL MACHINES
INTERNAL CONNECTION
RESISTANCES AT ROOM TEMPERATURE (CA. 20°C/68°F)
VALUES WITHIN +/-10% ARE REGARDED AS NORMAL COMPONENT
F: RADIO INTERFERENCE SUPPRESSION FILTER 680K Ohm
EL: HEATING ELEMENT 25 Ohm
AP: DRAIN PUMP 50 Hz 144 Ohm
AP: DRAIN PUMP 60 Hz 76 Ohm
AV: DRAIN VALVE 110/134 Ohm
LL: DOOR LOCK, 1-2 122 Ohm
NTC: THERMISTOR 6.1 - 3.8 K Ohm
IV 1: INLET VALVE 1 3.7 K Ohm
IV 2: INLET VALVE 2 3.7 K Ohm
IV3: INLET VLAVE 3 3.5 K Ohm
MO: MOTOR, 1-3 4,3±7% Ohm
1-2 4,3±7% Ohm
2-3 4,3±7% Ohm
MCU: MOTOR CONTROL UNIT
N: PRESSURE SWITCH
TS: PRESSURE SENSOR
TG: TACHO GENERATOR
BA: CONTAINER
INKB: INCOMING GROUND
CI: COMMUNICATIONS INTERFACE
CM: COIN METER CABLES
IV2
IV1
NTC
F
TS
AP/AV
LL
MO
MCU
3
2
1
CABLE POSITIONS
1: MOTOR COMMUNICATION
2: THERMISTOR
3: INLET VALVES
4: DOOR LOCK, DRAIN PUMP, PREASSURE SWITCH
6: COMMUNICATION INTERFACE
7: COIN COLLECTOR
8: POWER
9: HEATING ELEMENT, PREASSURE SWITCH
10: MOTOR POWER
3
1
2
TG
<N
N14
N12
N16
N11
EL1
N
R43
R44
R34
R33
R23
R24
RA
RB
EL
INKB
BA
EL2
F
RP
AV BO
WIRES IN SOME MACHINES
F1
F2
1 Phase, 16 A
2011-04-14
SERVICEMENU
TURN OFF POWER (S1)
WAIT FOR AT LEAST 5 SEC
HOLD S4
TURN ON POWER (S1)
PRESS S4 5 TIMES TO ENTER SERVICE MENU
PRESS DOOR OPENING (S5) TO CHANGE MENU STEP
ROTATE DIAL TO CHANGE IN STEP
PRESSING START/STOP (S4) STORES AND EXITS SERVICE MENU
USER SETTINGS MENU
TURN OFF POWER (S1)
WAIT FOR AT LEAST 5 SEC
HOLD S5
TURN ON POWER (S1)
PRESS S5 5 TIMES TO ENTER MENU
COMMON PHASE
S1
S5
S4
R33
N
L1
R43 / R23
L
P1
P2
P3
FUSE
FUSE
This document must not be copied without
our written pemission, and the contents
thereof must not be imparted to a third party
nor be used for any unauthorized purpose.
Contravention will be prosecuted.
Asko Appliance AB
CIRCUIT DIAGRAM WM70.C WC US/CA
80 893 65 - 01
WIRES IN ALL MACHINES
INTERNAL CONNECTION
RESISTANCES AT ROOM TEMPERATURE (CA. 20°C/68°F)
VALUES WITHIN +/-10% ARE REGARDED AS NORMAL COMPONENT
F: RADIO INTERFERENCE SUPPRESSION FILTER 680K Ohm
EL: HEATING ELEMENT 25 Ohm
AP: DRAIN PUMP 50 Hz 144 Ohm
AP: DRAIN PUMP 60 Hz 76 Ohm
AV: DRAIN VALVE 110/134 Ohm
LL: DOOR LOCK, 1-2 122 Ohm
NTC: THERMISTOR 6.1 - 3.8 K Ohm
IV 1: INLET VALVE 1 3.7 K Ohm
IV 2: INLET VALVE 2 3.7 K Ohm
IV3: INLET VLAVE 3 3.5 K Ohm
MO: MOTOR, 1-3 4,3±7% Ohm
1-2 4,3±7% Ohm
2-3 4,3±7% Ohm
MCU: MOTOR CONTROL UNIT
N: PRESSURE SWITCH
TS: PRESSURE SENSOR
TG: TACHO GENERATOR
BA: CONTAINER
INKB: INCOMING GROUND
CI: COMMUNICATIONS INTERFACE
CM: COIN METER CABLES
IV2
IV1
NTC
F
TS
AP/AV
LL
MO
MCU
3
2
1
CABLE POSITIONS
1: MOTOR COMMUNICATION
2: THERMISTOR
3: INLET VALVES
4: DOOR LOCK, DRAIN PUMP, PREASSURE SWITCH
6: COMMUNICATION INTERFACE
7: COIN COLLECTOR
8: POWER
9: HEATING ELEMENT, PREASSURE SWITCH
10: MOTOR POWER
3
1
2
TG
<N
N14
N12
N16
N11
EL1
N
R43
R44
R34
R33
R23
R24
RA
RB
EL
INKB
BA
EL2
F
RP
AV BO
WIRES IN SOME MACHINES
F1
F2
1 Phase, 16 A
2011-04-14
SERVICEMENU
TURN OFF POWER (S1)
WAIT FOR AT LEAST 5 SEC
HOLD S4
TURN ON POWER (S1)
PRESS S4 5 TIMES TO ENTER SERVICE MENU
PRESS DOOR OPENING (S5) TO CHANGE MENU STEP
ROTATE DIAL TO CHANGE IN STEP
PRESSING START/STOP (S4) STORES AND EXITS SERVICE MENU
USER SETTINGS MENU
TURN OFF POWER (S1)
WAIT FOR AT LEAST 5 SEC
HOLD S5
TURN ON POWER (S1)
PRESS S5 5 TIMES TO ENTER MENU
COMMON PHASE
S1
S5
S4
R33
N
L1
R43 / R23
L
P1
P2
P3
FUSE
FUSE

Related product manuals