EasyManua.ls Logo

Asko WM70.C - Page 30

Asko WM70.C
38 pages
Print Icon
To Next Page IconTo Next Page
To Next Page IconTo Next Page
To Previous Page IconTo Previous Page
To Previous Page IconTo Previous Page
Loading...
Service manual WM70.C
30
This document must not be copied without
our written pemission, and the contents
thereof must not be imparted to a third party
nor be used for any unauthorized purpose.
Contravention will be prosecuted.
Asko Appliance AB
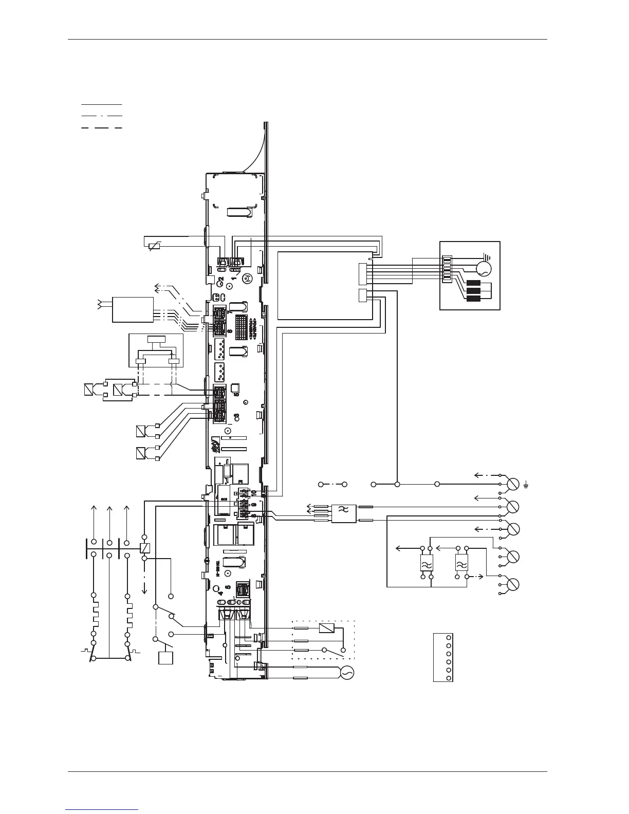
CIRCUIT DIAGRAM WM70.C HWC
80 931 37 - 00
WIRES IN ALL MACHINES
INTERNAL CONNECTION
RESISTANCES AT ROOM TEMPERATURE (CA. 20°C/68°F)
VALUES WITHIN +/-10% ARE REGARDED AS NORMAL COMPONENT
F: RADIO INTERFERENCE SUPPRESSION FILTER 680K Ohm
EL: HEATING ELEMENT 25 Ohm
AP: DRAIN PUMP 50 Hz 144 Ohm
AP: DRAIN PUMP 60 Hz 76 Ohm
AV: DRAIN VALVE 110/134 Ohm
LL: DOOR LOCK, 1-2 122 Ohm
NTC: THERMISTOR 6.1 - 3.8 K Ohm
IV 1: INLET VALVE 1 3.7 K Ohm
IV 2: INLET VALVE 2 3.7 K Ohm
IV3: INLET VLAVE 3 3.5 K Ohm
MO: MOTOR, 1-3 4,3±7% Ohm
1-2 4,3±7% Ohm
2-3 4,3±7% Ohm
MCU: MOTOR CONTROL UNIT
N: PRESSURE SWITCH
TS: PRESSURE SENSOR
TG: TACHO GENERATOR
BA: CONTAINER
INKB: INCOMING GROUND
CI: COMMUNICATIONS INTERFACE
MV: MAGNETIC VALVE
SV: SWITCHING VALVE
IV2
IV1
NTC
F
TS
AP/AV
LL
MO
MCU
3
2
1
CABLE POSITIONS
1: MOTOR COMMUNICATION
2: THERMISTOR
3: INLET VALVES
4: DOOR LOCK, DRAIN PUMP, PREASSURE SWITCH
6:
COMMUNICATION INTERFACE
7: COIN COLLECTOR
8: POWER
9: HEATING ELEMENT, PREASSURE SWITCH
10: MOTOR POWER
3
1
2
TG
S1
S4
S5
<N
N14
N12
N16
N11
EL1
F31
N
R43
R44
R34
R33
R23
R24
RA
RB
EL
INKB
BA
N
L2
L3
L1
R33
R43
EL2
F21
F
CM2
F2
F3
CM3
R23
AV BO
WIRES IN SOME MACHINES
CI
PHASE
BLACK
CM1
CM2
BROWN
CM5
CM4
CM3
GROUND
BLUE
CM6
BLACK
BLUE
CM1
CM4
CM6
CI
F1
F2
F21
F22
F31
F32
N
L1
R33
CM2
CM6
F1
F22/32
F2
INKB
F21
1 Phase, 10 A
3 Phase, 10A
CM5
2011-11-11
SERVICE MENU
TURN OFF POWER (S1)
WAIT FOR AT LEAST 5 SEC
HOLD S4
TURN ON POWER (S1)
PRESS S4 5 TIMES TO ENTER SERVICE MENU
PRESS DOOR OPENING (S5) TO CHANGE MENU STEP
ROTATE DIAL TO CHANGE IN STEP
PRESSING START/STOP (S4) STORES AND EXITS SERVICE MENU
USER SETTINGS MENU
TURN OFF POWER (S1)
WAIT FOR AT LEAST 5 SEC
HOLD S5
TURN ON POWER (S1)
PRESS S5 5 TIMES TO ENTER MENU
YELLOW-
GREEN
FROM CONTROL UNIT
NEUTRAL
HEATER
FROM CONTROL UNIT
If coin meter is selected
CM1 and CM4 needs to
be closed to start the
machine (default closed)
CONNECTOR FOR COIN METER
N
L1
R33
CM2/F21
CM6
F1
F22/32
F2
INKB
F31
1 Phase, 16 A
MV
SV
Relay board
Wiring diagram WM70.C HWC

Related product manuals