EasyManua.ls Logo

ASROCK A620M-HDV/M.2+ - Page 40

ASROCK A620M-HDV/M.2+
55 pages
Print Icon
To Next Page IconTo Next Page
To Next Page IconTo Next Page
To Previous Page IconTo Previous Page
To Previous Page IconTo Previous Page
Loading...
English
36
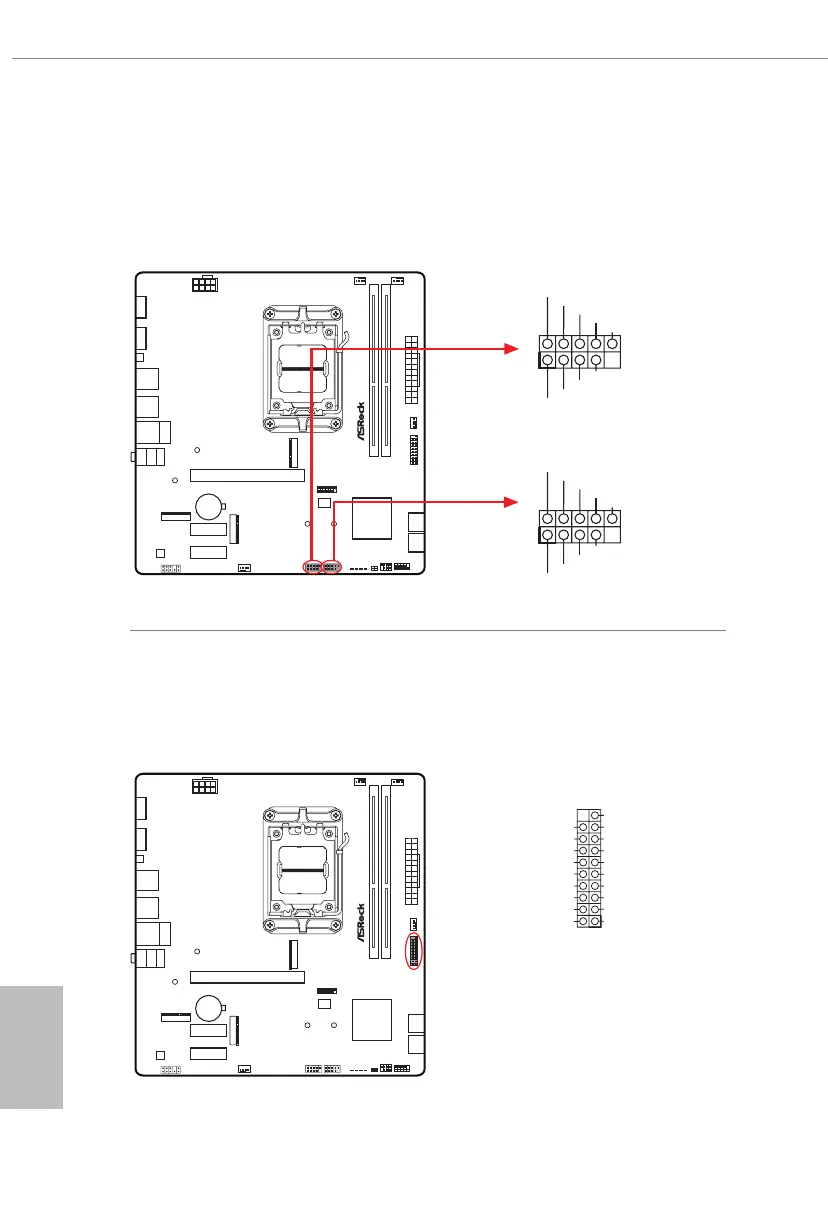
USB 2.0 Headers
(9-pin USB_3_4) (see p.5, No. 16)
(9-pin USB_5_6) (see p.5, No. 15)
ere are two headers on this motherboard. Each USB 2.0 header can support
two ports.
USB 3.2 Gen1 Header
(19-pin USB32_4_5) (see p.5, No. 7)
ere is one header on this motherboard. is USB 3.2 Gen1 header can support two
ports.
USB_3_4
USB_5_6
DUMMY
G ND
G ND
+B
-B
USB_PWR
+A
-A
USB_PWR
1
DUMMY
G ND
G ND
+B
-B
USB_PWR
+A
-A
USB_PWR
1
USB32_4_5
1
IntA _P B_ D+
Dumm y
IntA _P B_ D-
GND
IntA _P B_ SSTX+
GND
IntA _P B_ SSTX-
IntA _P B_ SSRX+
IntA _P B_ SSRX-
VbusVbus
Vbus
IntA_PA_SSRX-
IntA_PA_SSRX+
GND
IntA_PA_SSTX-
IntA_PA_SSTX+
GND
IntA_PA_D-
IntA_PA_D+

Related product manuals