EasyManua.ls Logo

Atlantic Boilers ESB T-2000 - The Heating Engineer; The Applied Directives and Standards; Introduction

Default Icon
25 pages
Print Icon
To Next Page IconTo Next Page
To Next Page IconTo Next Page
To Previous Page IconTo Previous Page
To Previous Page IconTo Previous Page
Loading...
erensan°
“The Heating Engineer
- 7 –
280111
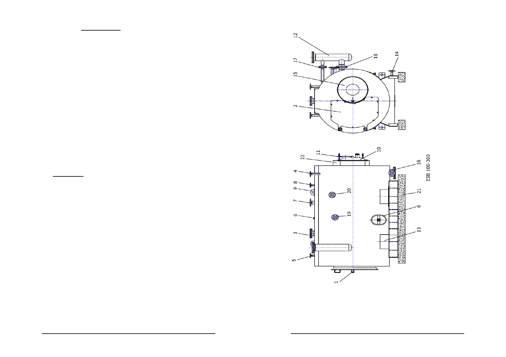
FEATURES OF e r e n s a n° BRAND BOILERS
“the heating engineer”
ESB type boilers are 3-pass boilers. The radiation
created by the 1
st
pass in the combustion room and the
convection and conduction created by the 2
nd
and 3
rd
passes through the smoke pipes are transferred to water
by heat transfer.
ESB type boilers are convenient for large water and
steam volumes and sudden steam needs under irregular
working conditions.
Because their “wet back” designs, ESB boilers provide
maximum benefit from their heat transfer surfaces.
Because of their low counter pressure, ESB boilers
increase the combustion efficiency and decrease the
electricity consumption of burners.
erensan°
brand liquid and gas fuelled ESB boilers that
provide high efficiency with these features lower
operational costs by working in a stable regime.
THE APPLIED DIRECTIVES AND STANDARDS
97/23/AT (PRESSURE EQUIPMENT DIRECTIVE)
EN 12953-1.....8:2002
pr EN 12953-9:1999
pr EN 12953-10:1998
pr EN 12953-11:2001
erensan
°
“The Heating Engineer
- 8 –
280111
INTRODUCTION

Table of Contents

Related product manuals