EasyManua.ls Logo

Atlantic Compact 100 L - Compact Models

Atlantic Compact 100 L
Print Icon
To Next Page IconTo Next Page
To Next Page IconTo Next Page
To Previous Page IconTo Previous Page
To Previous Page IconTo Previous Page
Loading...
InstallationManual
2525
GB
Cover
single phase
Cover
three phase
Cold water
Hot water
View from below
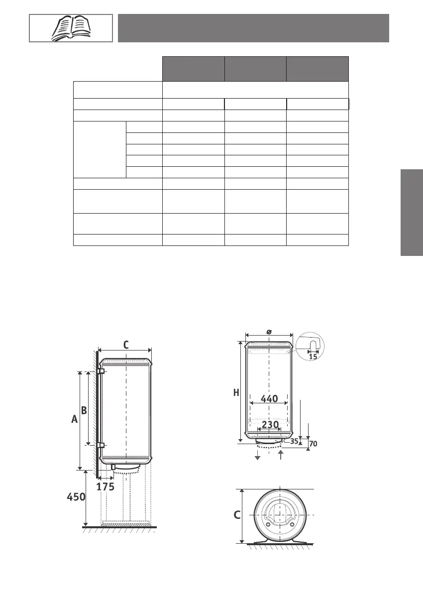
Compact
100L
Compact
150L
Compact
200L
Voltage(V)
230 V monophase
Resistor blindée blindée blindée
Power(W) 1200 1650 2200
Dimensions
(mm)
Ø 570 570 570
H 735 1000 1250
A 600 760 1040
B / 500 800
C 590 590 590
Heatingtime* 5h32 5h38 5h33
Qpr(Maintenance
consumption)**
1,24 1,37 1,67
V40(Quantityofhot
waterat40°C(litres))
175 266 359
Emptyweight(kg) 31 41 50
*Heatingtimeforheatingbetween15and65°C
**MaintenanceconsumptioninkWhfor24hoursforwaterat65°C(ambient20°C)
(1)Devicessuppliedreadyforusewiththreephase230/400V3~,possibletochangeonsitetosinglephase230V~

Table of Contents

Related product manuals