EasyManua.ls Logo

Atlas Copco LF 10

Atlas Copco LF 10
75 pages
To Next Page IconTo Next Page
To Next Page IconTo Next Page
To Previous Page IconTo Previous Page
To Previous Page IconTo Previous Page
Loading...
30 2920 7090 00
Instruction book
9820 4496 00/01
81458D
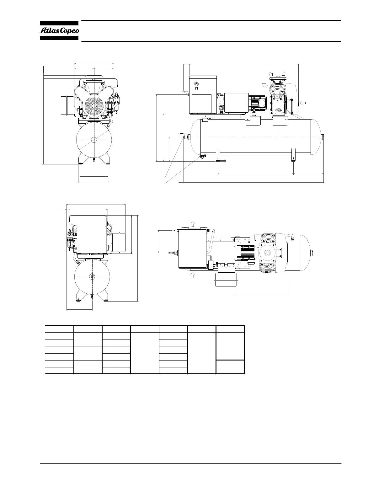
Compressor Air inlet
960
384
1782
450
1390
60
3
1
0
3
1
0
6
0
5
6
H
6
Manual drain outlet G 1/4"
Compressed air outlet G 1/2"
Dryed compressed air outlet G 1/2"
402
5
352
5
8
5
0
6
76
For dismantling
air filter
Cooling air inlet
Cooling air outlet
4
0
A
B C
748
28 495
1
0
9
0
6
4
8
5
326
2
8
6
Dryer cooling air outlet
Dryer cooling air inlet
D
Type Net Mass A B C D H
LE/LF 2 504 252
LT2
533 279
LE/LF 3
504 252
LT3
533 279
LE5
504 252
LT5 533 279
1072
175 kg
1082
171 kg
177 kg
252 686
LF 2 up to LF 3, Tank-mounted Full-Feature, receiver 250 l

Related product manuals