EasyManua.ls Logo

Atlas Copco LF 10

Atlas Copco LF 10
75 pages
To Next Page IconTo Next Page
To Next Page IconTo Next Page
To Previous Page IconTo Previous Page
To Previous Page IconTo Previous Page
Loading...
2920 7090 00 31
Instruction book
9820 4497 00/01
81459D
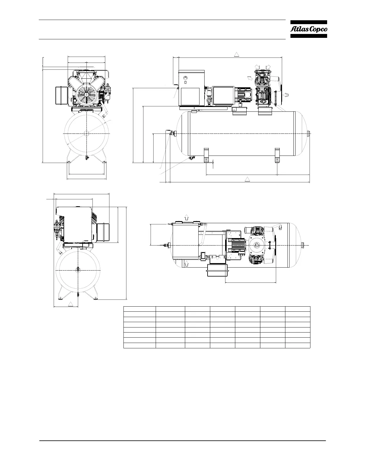
Compressor Air inlet
476
5
1
0
1888
3
9
5
3
7
6
7
6
1
0
1
2
6
H
6
Compressed air outlet G 1/2"
Manual drain outlet G 1/4"
Dryed compressed air outlet G 1/2"
60
75
For dismantling
air filter
Cooling air inlet
Cooling air outlet
530
5
600
1398
960 437
A
B
C
4
0
1
1
27 495
748
1
2
5
2
6
4
8
5
327
1
2
8
7
Dryer cooling air outlet
Dryer cooling air inlet
D
Type
Net Mass
A
B
C D H
LE5
225 kg
510 255 255 686 1261
LT5
225 kg
533 255 279 686 1261
LF5 / LE7
265 kg
592 296 296 860 1341
LT/LF 7
265 kg
606 296 310 860 1341
LE 10 (50Hz) 282 kg
592 296 296 932 1341
LT 10 (50Hz) 277 kg
606 296 310 932 1341
LF 10 / LE 15
320 kg
790 418 372 1000 1379
LF 5 up to LF 10, Tank-mounted, Full-Feature, receiver 475 l

Related product manuals