EasyManua.ls Logo

Atlas Copco LF 2 - Page 27

Atlas Copco LF 2
75 pages
Print Icon
To Next Page IconTo Next Page
To Next Page IconTo Next Page
To Previous Page IconTo Previous Page
To Previous Page IconTo Previous Page
Loading...
2920 7090 00 25
Instruction book
9820 2239 43/05
81453D
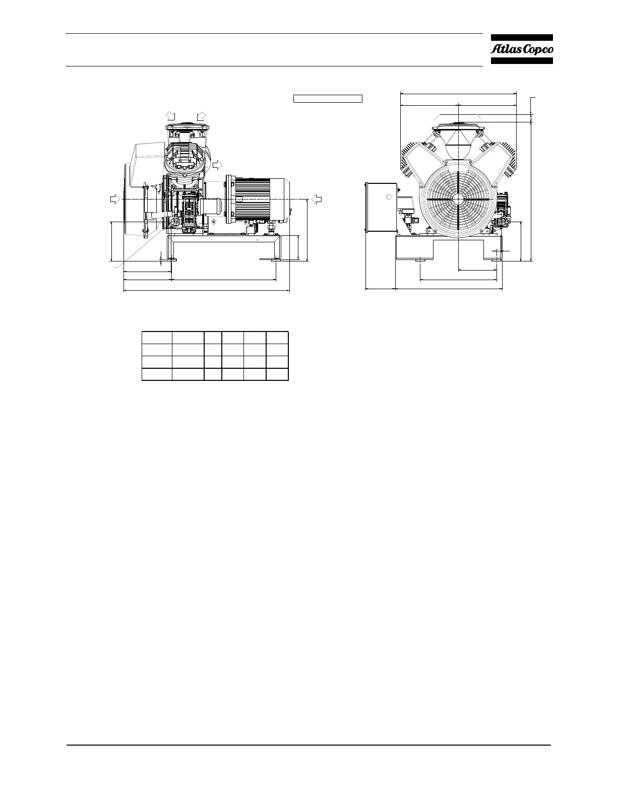
Type Net mass (Kg) A B C D
LE/LT/LF 7 92 860 322 205 721
LE/LT/LF 10 104 932 322 205 721
LE 10 (60 Hz) 104 929 360 243 759
Compressor cooling
Air inlet
Cooling
Air outlet
Motor cooling
Air inlet
Compressor Air inlet
BM LE/LT/LF 7-10 YD
300
300
600
154 555
198
395
24
1
0
C
C
D
4
0
For dismantling
Air filter
B
1
2
5
248 541
A
244
Compressed Air outlet
G1/2"
LF 7 up to LF 10, Base-mounted

Related product manuals