EasyManua.ls Logo

Atlas Copco LF 2

Atlas Copco LF 2
75 pages
To Next Page IconTo Next Page
To Next Page IconTo Next Page
To Previous Page IconTo Previous Page
To Previous Page IconTo Previous Page
Loading...
28 2920 7090 00
Instruction book
9820 2239 22/07
81457D
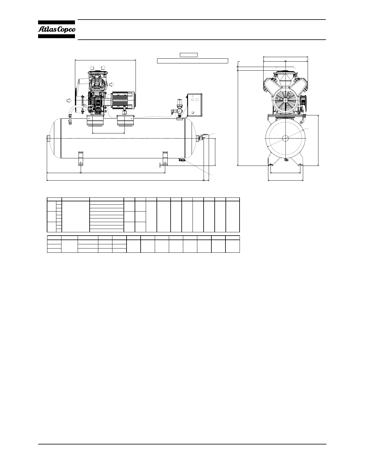
R eceiver(L) Net M ass (K g) A B C D E F G H E K
2147
3149
5150
2167
3169
5170
2147
3149
5150
1082LT 533 279
LF 504 252
336 382 575 450
252
418 1852 310
Type
LE
250
504
Type Receiver (L) Net Mass (Kg) A B C D E F G H J K
LE 5 185 504 252
LT 5 245 533 279
LF 5 185 504 252
1261455 1926 395 476475 530 754 600
Cooling air
Outlet
Cooling air
Inlet
Compressor air inlet
LE/LT/LF 5
OPTIONAL LARGER VESSEL ON LE/LT/LF 2-3-5
C 960
Dmax
687
E
Ø J
H
G
4
0
K
252
B
A
F
For dismantling air filter
60
Compressed
Air outlet G 1/2"
365
Manual drain
G 1/4"
1
0
LF 2 up to LF 5, Tank-mounted horizontal receiver 250/475l

Related product manuals