EasyManua.ls Logo

Atlas Copco LF 3

Atlas Copco LF 3
75 pages
To Next Page IconTo Next Page
To Next Page IconTo Next Page
To Previous Page IconTo Previous Page
To Previous Page IconTo Previous Page
Loading...
34 2920 7090 00
Instruction book
9820 2239 71/07
81462D
1569
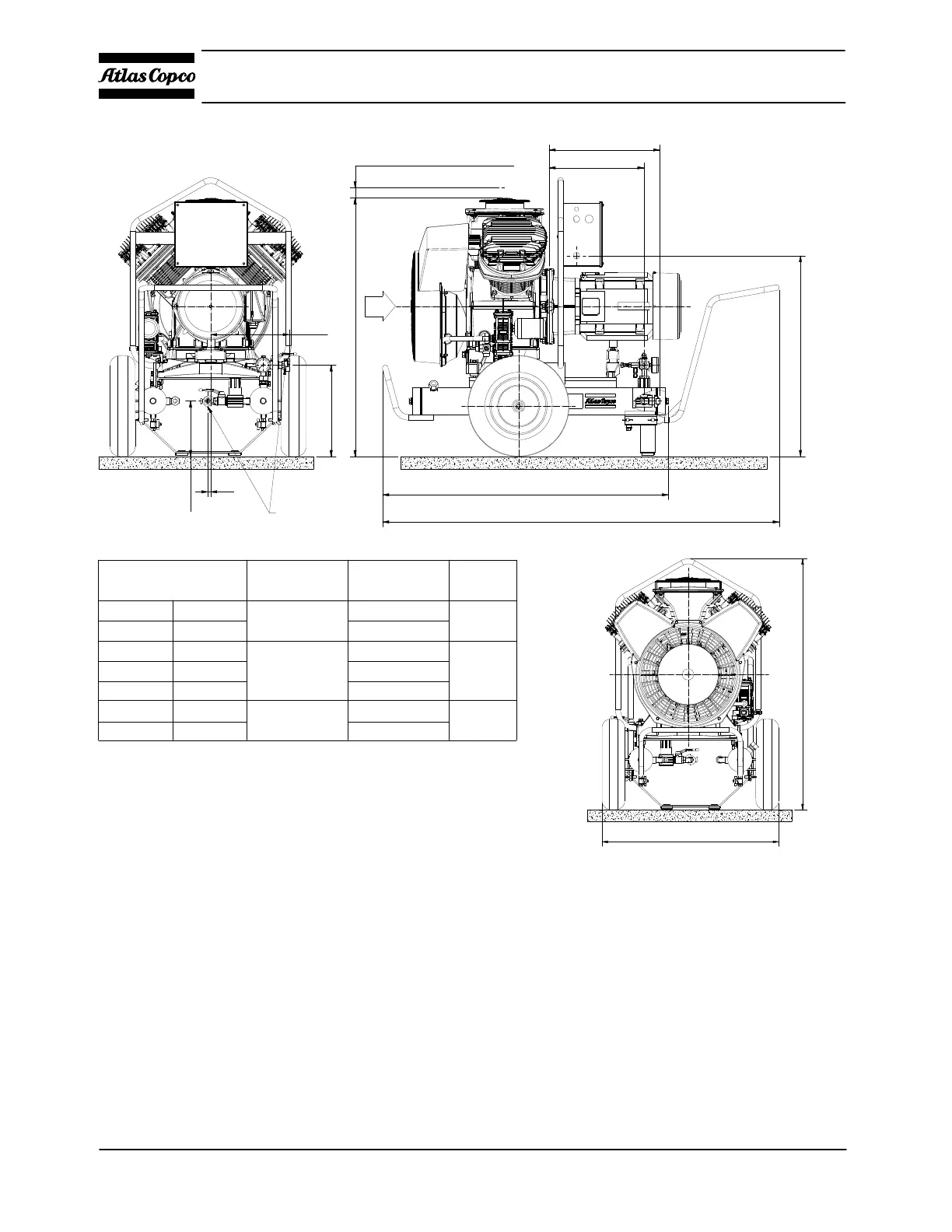
1131
7
9
5
A
Compressed
air outlet
40 (For dismantling air filter)
Air
Inlet
3
6
3
2
2
0
10
311,5
375
438
1
1
0
4
776
TYPE
RECEIVER
(lit.)
NET MASS
(Kg)
A
LE/LT/LF
2
3
5
LE/LT/LF
15
10
7
LE/LT
20
2 x 10 ltr.
2 x 10 ltr.
2 x 10 ltr.
95
99
101
140
152
216
248
812
891
1024
LF Trolley with electrical motor

Related product manuals