EasyManua.ls Logo

Atlas Copco LT40 - Page 18

Atlas Copco LT40
48 pages
To Next Page IconTo Next Page
To Next Page IconTo Next Page
To Previous Page IconTo Previous Page
To Previous Page IconTo Previous Page
Loading...
2920 1257 04
18
Instruction book
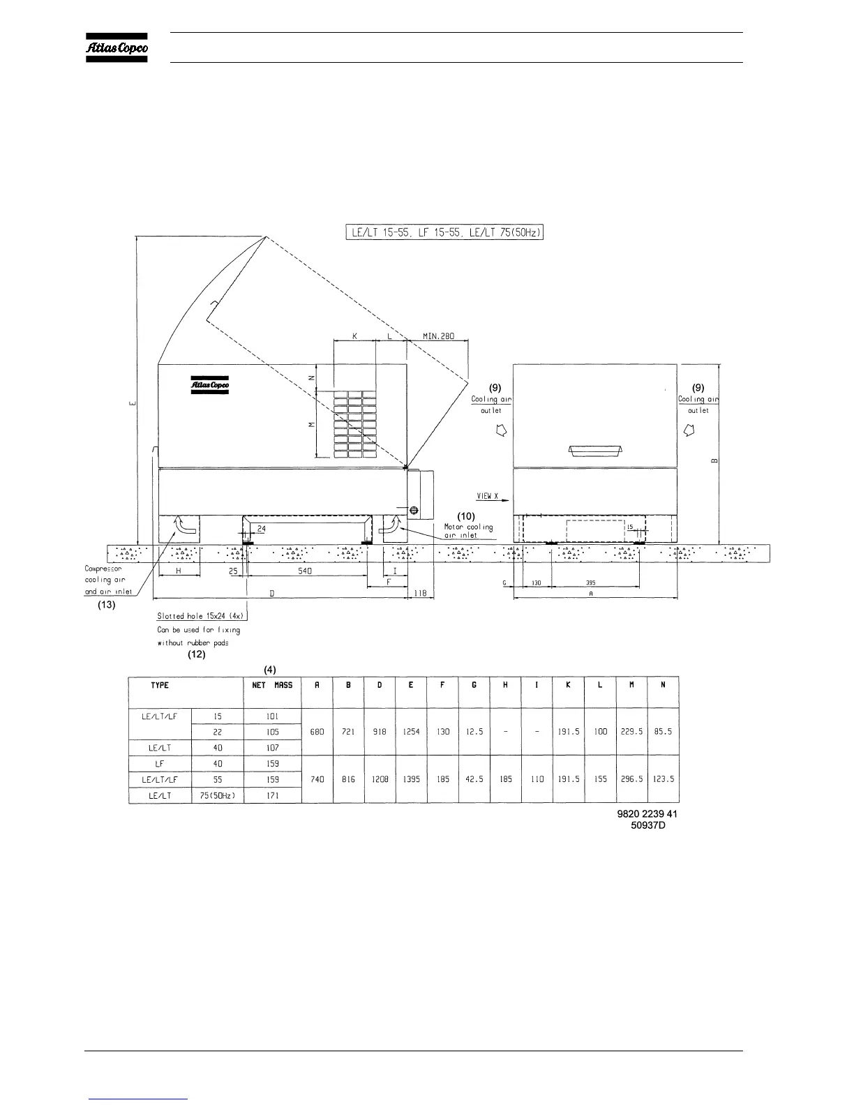
Fig. 2.9 Dimension drawing, LE/LF/LT Pack with optional silencing hood

Table of Contents

Related product manuals