EasyManua.ls Logo

Atlas Copco LT40 - Page 21

Atlas Copco LT40
48 pages
To Next Page IconTo Next Page
To Next Page IconTo Next Page
To Previous Page IconTo Previous Page
To Previous Page IconTo Previous Page
Loading...
2920 1257 04
21
Instruction book
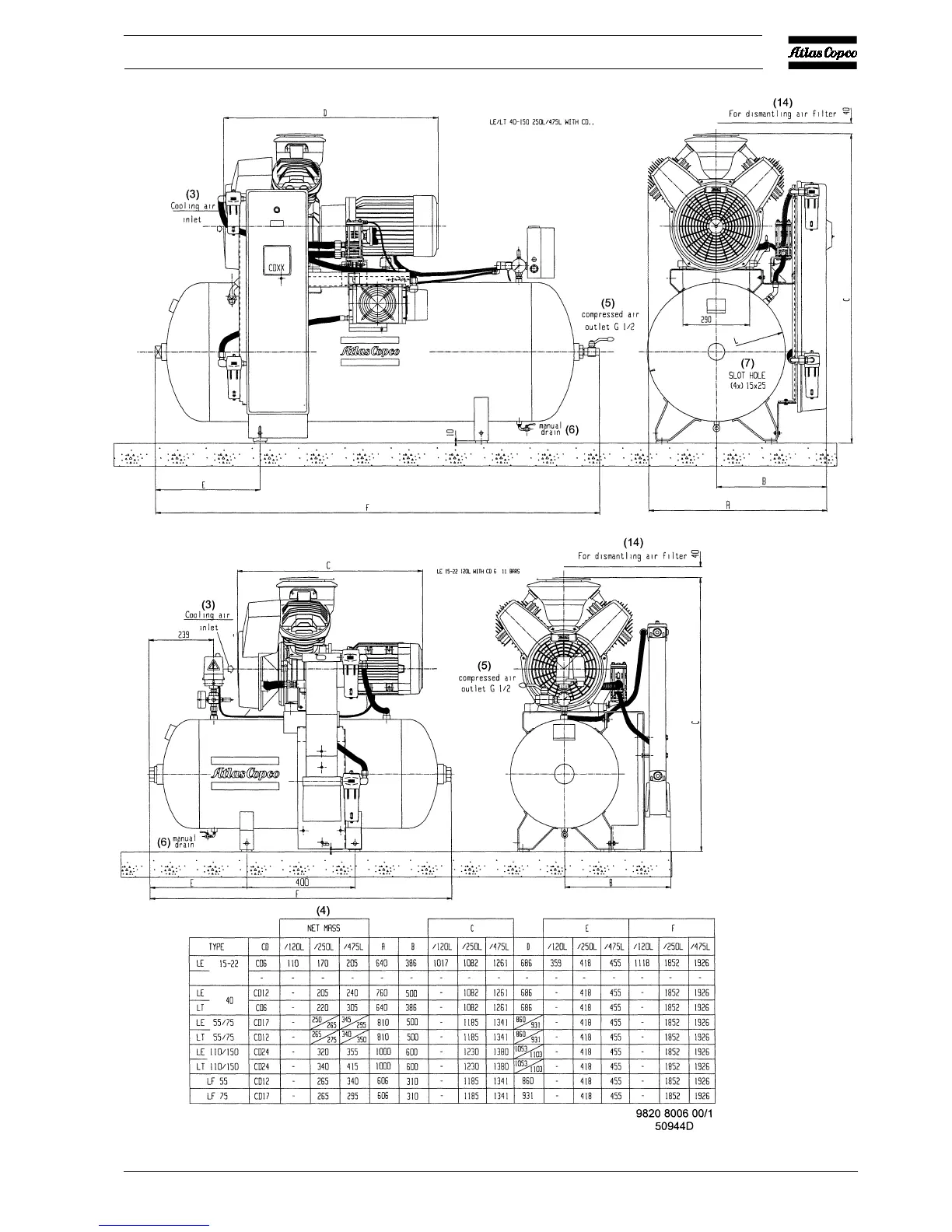
Fig. 2.12 Dimension drawing, LE/LT15 up to -150 with CD dryer

Table of Contents

Related product manuals