EasyManua.ls Logo

Atlas Copco XAS 98 Kd WUX

Atlas Copco XAS 98 Kd WUX
64 pages
To Next Page IconTo Next Page
To Next Page IconTo Next Page
To Previous Page IconTo Previous Page
To Previous Page IconTo Previous Page
Loading...
- 48 -
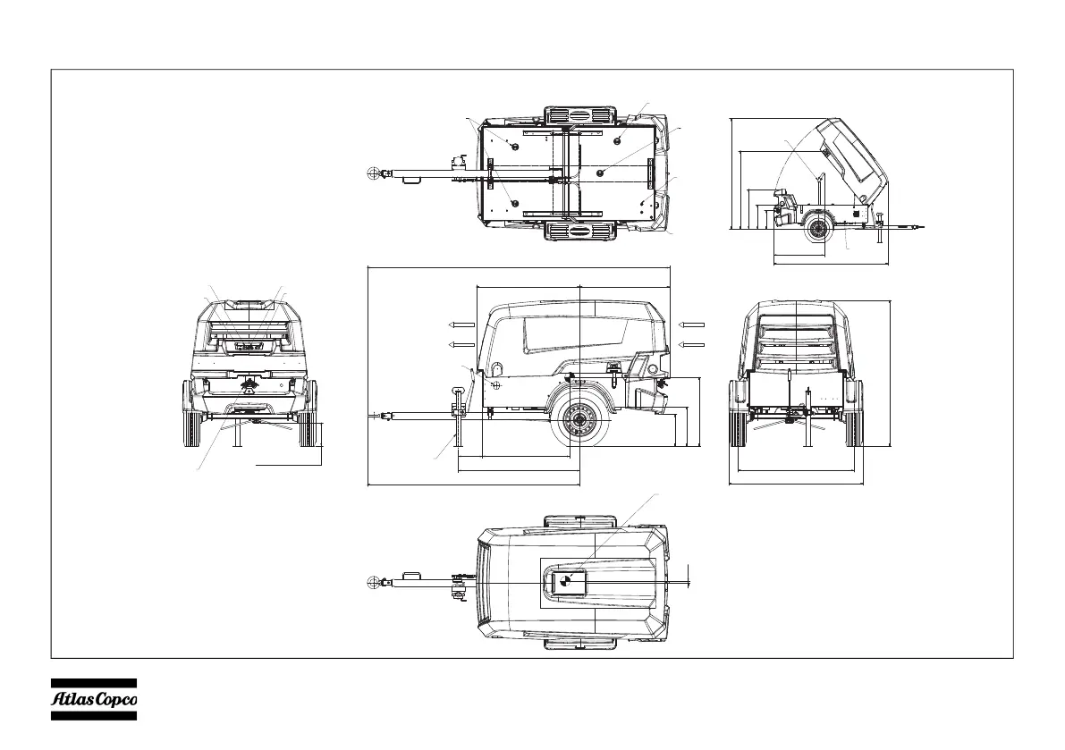
9829 3802 39-04 BOX+FP+SUPPORT LEG
Z
z
Xz
Access to
lifting eye
Y
z
Cooling air outlet
Vessel Oil Drain
Element Oil Drain
2285
2
2
1
4
7
9
8
3
7
4
234 Ground clearance
1
4
6
1
1158 [Wheel Track]
1344
2127
1216,5
3026
1035 899
Engine Oil Drain
Start Switch
Pressure Gauge
Hourmeter
Warning Lights
Air Outlet Valves 3/4" (3x)
Alternate Jockey Wheel
Cooler Drain
242,5
Cooling Air inlet
1
5
6
7
1010
Lifting beam
Gearbox Oil Drain
4
8
4
Frame Drain
Engine exhaust outlet
3
1
7
,
8
3
9
3
,
2

Related product manuals