EasyManua.ls Logo

Atlas Copco XAS 98 Kd WUX

Atlas Copco XAS 98 Kd WUX
64 pages
To Next Page IconTo Next Page
To Next Page IconTo Next Page
To Previous Page IconTo Previous Page
To Previous Page IconTo Previous Page
Loading...
- 49 -
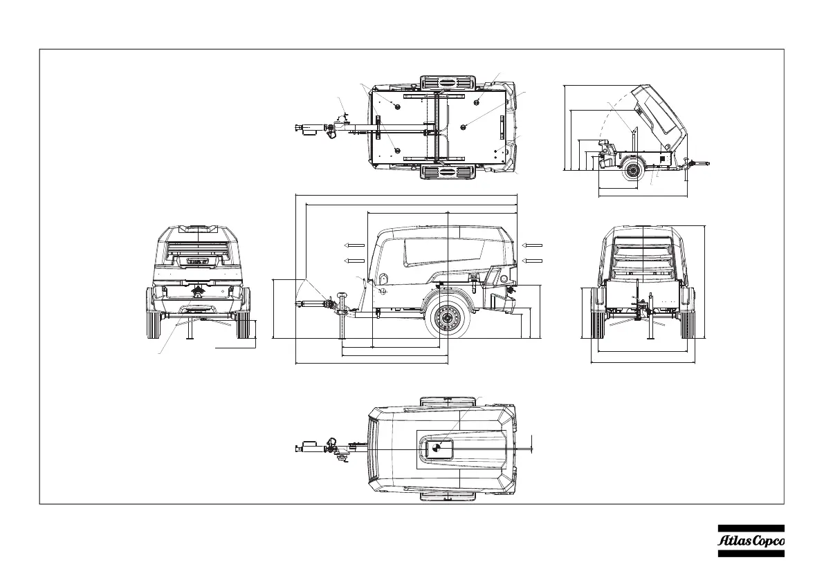
9829 3802 39-05 BOX+AB+SUPPORT LEG
Z
z
Xz
Access to lifting eye
Y
z
1
5
6
7
2
2
1
4
M
a
x
(
H
o
o
d
O
p
e
n
)
7
9
8
2869 Max. (Without towing eye)
1158 [Wheel Track]
6
5
6
Cooling air outlet
2735 Min (Without Towing eye)
Support Leg
Data Plate
Air Outlet Valves 3/4" (3x)
1969,5
Cooler Drain
Frame drain
Vessel Oil Drain
Element Oil Drain
7
6
8
234 Ground Clearance
Cooling Air inlet
4
8
4
1010
Lifting beam
1344
Gearbox Oil Drain
Engine Oil Drain
2285
3
7
4
Engine exhaust outlet
394,5
1035 899
1366,5
3
1
7
,
8
3
9
3
,
2
1
4
6
1

Related product manuals