EasyManua.ls Logo

Atlas Copco XAS 98 Kd WUX

Atlas Copco XAS 98 Kd WUX
64 pages
To Next Page IconTo Next Page
To Next Page IconTo Next Page
To Previous Page IconTo Previous Page
To Previous Page IconTo Previous Page
Loading...
- 50 -
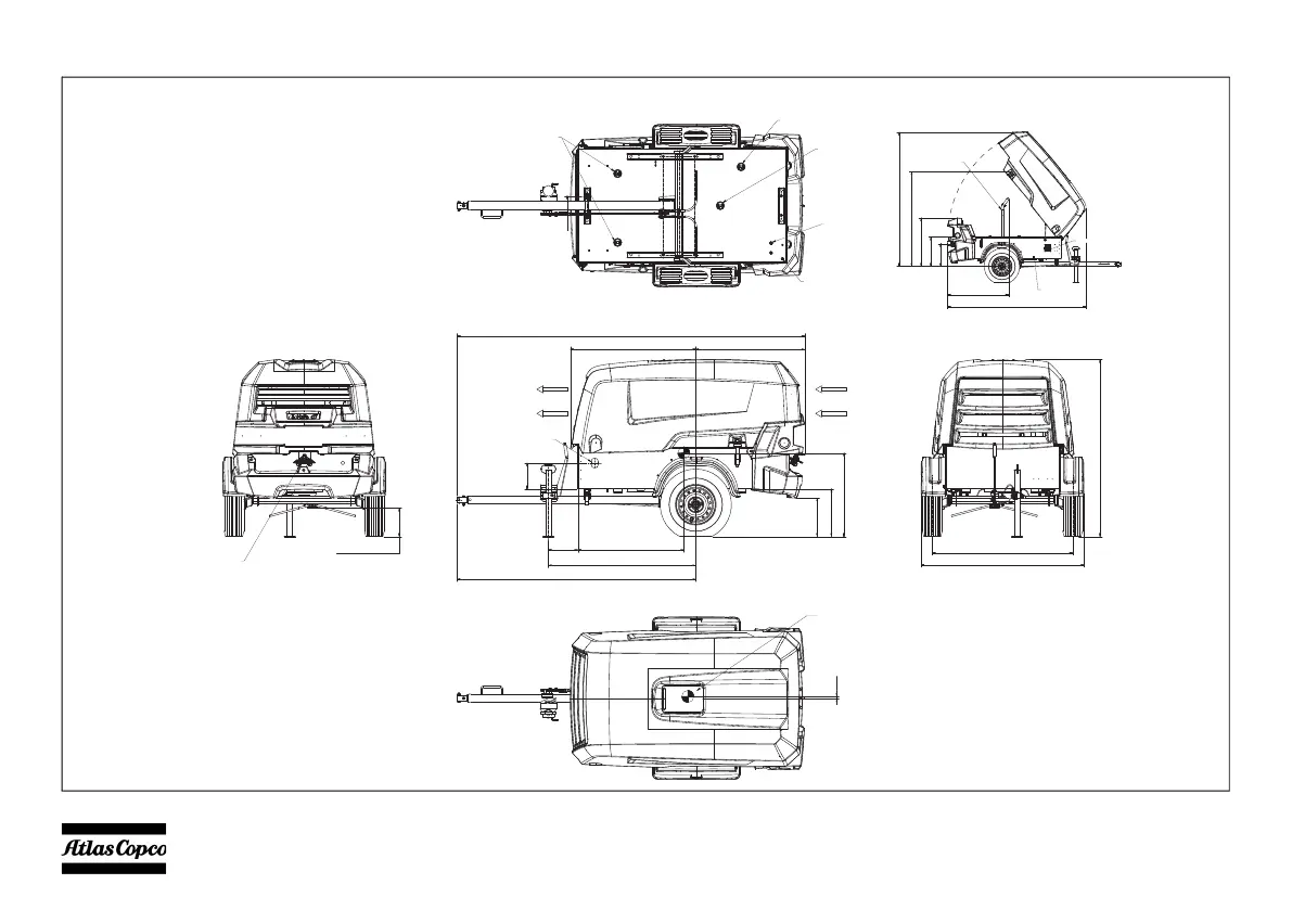
9829 3802 39-06 BOX+FB+SUPPORT LEG
Z
z
Xz
Access to lifting eye
Y
z
Cooling air outlet
2285
2
2
1
4
M
a
x
(
H
o
o
d
O
p
e
n
)
7
9
8
2869 Max (without towing eye)
1158(Wheel Track)
1
6
0
Cooler Drain
Air Outlet Valves 3/4" (3x)
234 Ground Clearance
Frame Drain
Vessel Oil Drain
Element Oil Drain
Cooling Air inlet
1010
1
5
6
7
242,5
2
1
3
1216,5
Lifting beam
1344
Gearbox Oil Drain
Engine Oil Drain
Data Plate
3
7
4
4
8
4
Engine exhaust outlet
1969,5
3
1
7
,
8
3
9
3
,
2
1035
899
1
4
6
1

Related product manuals