EasyManua.ls Logo

Atlas Copco XATS 125 DD7 C3 APP - 230 V;400 V Generator Systems

Atlas Copco XATS 125 DD7 C3 APP
116 pages
To Next Page IconTo Next Page
To Next Page IconTo Next Page
To Previous Page IconTo Previous Page
To Previous Page IconTo Previous Page
Loading...
- 32 -
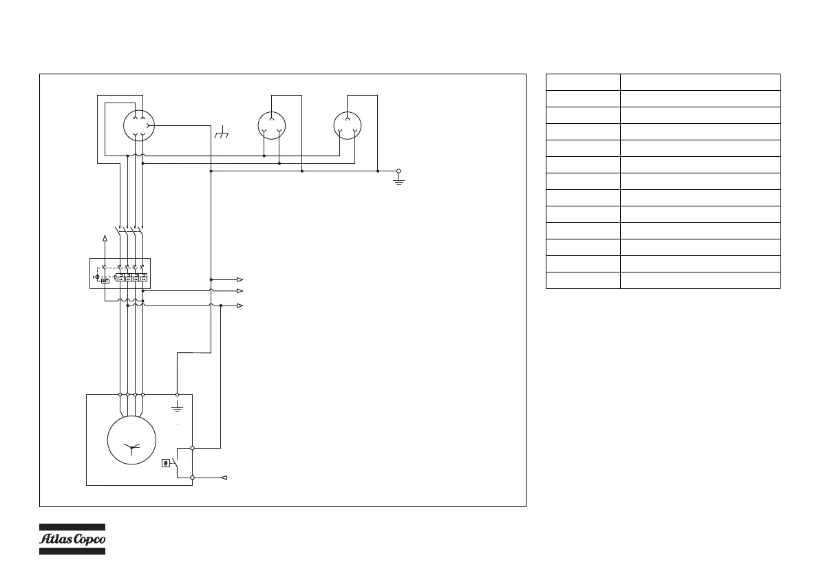
GENERATOR 230/400V, 6 kVA WITHOUT AUTOMATIC CONTROL SYSTEM
Circuit diagram (9822 1067 00) (Not on HardHat)
X1.1
W1(b0)
s1
10A
X1.2 X1.3
16A16A16A
PE
L2 L1
NL3
NL2 NL2
L2(c0)
N(c6)
(c54)
L2(c0)
N(c6)
(c54)
(c54)
K5
V1(c0)
U1(c0)
N(c6)
03.4
1357
246
8
W1(c0)
16(b0)
02.3,03.2
L2(c0)
L1(c0)
N(c6)
L3(c0)
N(b6)
Q1
W
U
N
V
s2
03
03
03
b54
W1(b0)
N(b6)
G3
G
S6
16(b0)
02
U1 W1 V1 N
SHEET 02
Reference Name
D1 Diode
G3 Generator
H3 Lamp (Power control)
K5 Contactor 4-pole
K6 Insulation monitoring relay
Q1 Circuit breaker 10A 4-pole
S6 Thermalcontact
S7 Switch (Generator-compressor)
X1.1 Socket outlet
X1.2 Socket outlet
X1.3 Socket outlet
Y2 Solenoid valve (Generator action)
The compressor is equipped with a negative earthed
system.
For location of relais K1, K2, K3, K4, see paragraph
Electric system.

Table of Contents

Related product manuals