EasyManua.ls Logo

Atlas Copco XATS156 Dd - Adjustments and Servicing Procedures; Continuous Regulating System Adjustment

Atlas Copco XATS156 Dd
30 pages
To Next Page IconTo Next Page
To Next Page IconTo Next Page
To Previous Page IconTo Previous Page
To Previous Page IconTo Previous Page
Loading...
INSTRUCTION MANUAL
21
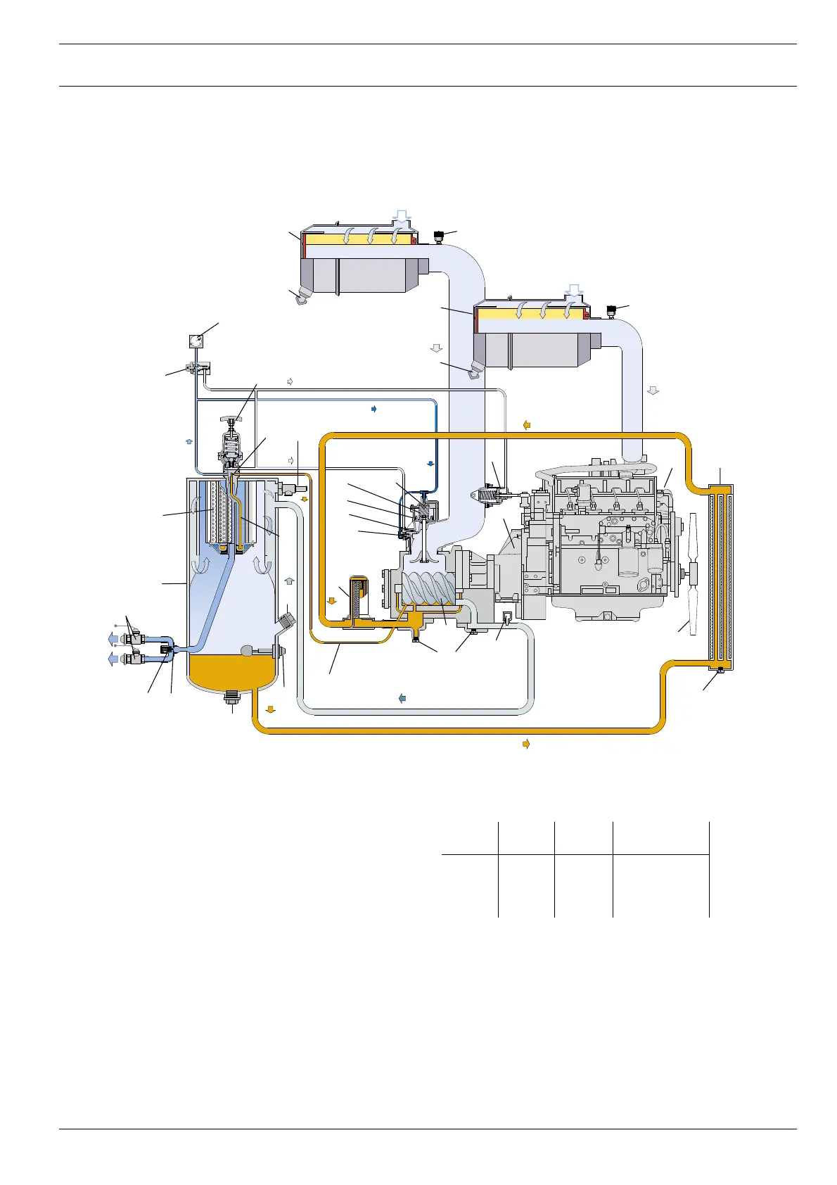
The working pressure is determined by the tension of the spring in
the regulating valve (RV). This tension can be increased to raise the
pressure and decreased to lower it by turning the adjusting wheel
clockwise and anti-clockwise respectively.
To adjust the normal working pressure, proceed as follows:
1. Start and warm up the engine (see section 3.3).
2. With the outlet valves (AOV) closed, loosen the regulating
valveÕs lock nut and adjust the regulating valve (RV) until a
pressure of X bar(e) is reached (see tabel).
3. Check the minimum speed of the engine. Adjust minimum speed
stop screw if necessary.
4. Open an outlet valve (AOV) just enough to let the engine (E) run
at maximum speed. The working pressure must be Y bar(e);
adjust if necessary with regulating valve (RV) (see tabel).
Tabel
X Y Z1 Ð Z2
bar bar bar bar
XA(S) 8.3 7 8.1 Ð 8.5
XATS 12 10.3 11.7Ð 12.2
XAHS 13.4 12 13.2Ð 13.6
XAVS 15.5 14 15.3Ð 15.7
5. Check the engine maximum speed. Adjust the maximum speed
by means of adjusting eccentric nut on top of speed regulator
(SR).
6. Close the outlet valves (AOV), check that the pressure is between
Z1 and Z2 bar(e) (see tabel). Lock the regulating valve (RV) by
fixing the lock nut.
VI
E OC
F
TS
DP
CE
OF
SL
FP
SL
OLG
DP
AR
OS
FR
SV
VV
VI
VV
SR
RV
AF
AOV
CH
CE
CV
BDV
VH
UA
UV
NRV
MPV
BOV
AF
E
DP
LV
PG
Fig. 5.1
5. ADJUSTMENTS AND SERVICING PROCEDURES
5.1 ADJUSTMENT OF THE CONTINUOUS REGULATING SYSTEM

Table of Contents

Related product manuals