EasyManua.ls Logo

Aura DECOR Series - Electrical Installation

Default Icon
17 pages
Print Icon
To Next Page IconTo Next Page
To Next Page IconTo Next Page
To Previous Page IconTo Previous Page
To Previous Page IconTo Previous Page
Loading...
7
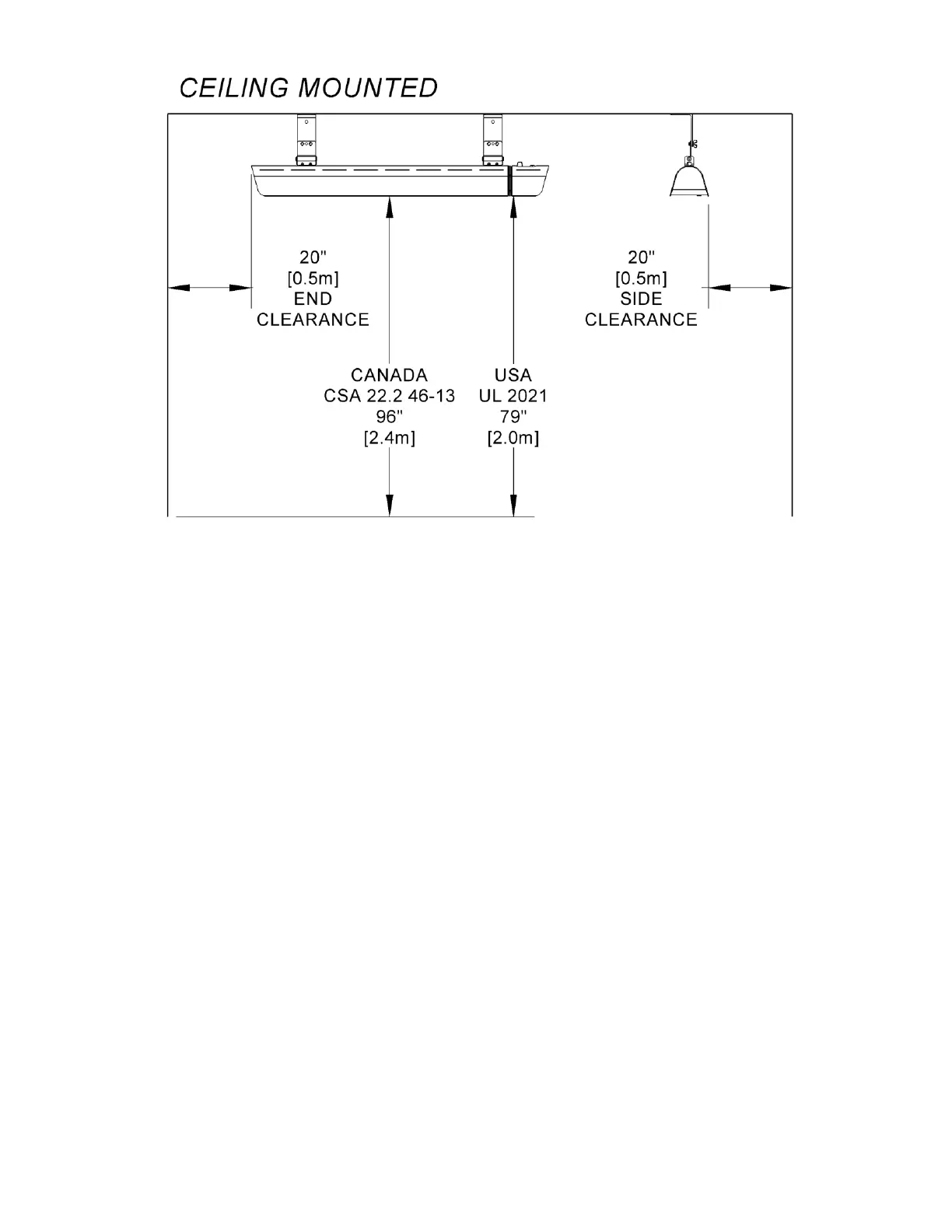
2.3 ELECTRICAL INSTALLATION
Safety Precautions
1. Each power supply circuit must be properly grounded.
2. Use a certified ground fault protection device for wet environment installations.
3. Use a proper electrical connection box.
4. Supply voltage and frequency must correspond to the electrical rating indicated on unit’s information
plate 3000W heaters must be used on 208 or 240V.
5. 3000W heaters are supplied with a grounding plug and must be installed per NEC/ local electrical code
6. 1500W heaters must be used on 120V
7. 1500W heaters are supplied with a grounding plug and must be installed per NEC/ local electrical codes