EasyManua.ls Logo

Autronica BS-100 - Page 19

Autronica BS-100
30 pages
To Next Page IconTo Next Page
To Next Page IconTo Next Page
To Previous Page IconTo Previous Page
To Previous Page IconTo Previous Page
Loading...
Technical Documentation: Fire Detectors used in hazardous areas
P-DET/EX/RCE/PM5/GKa/110995 19 Autronica Fire and Security AS
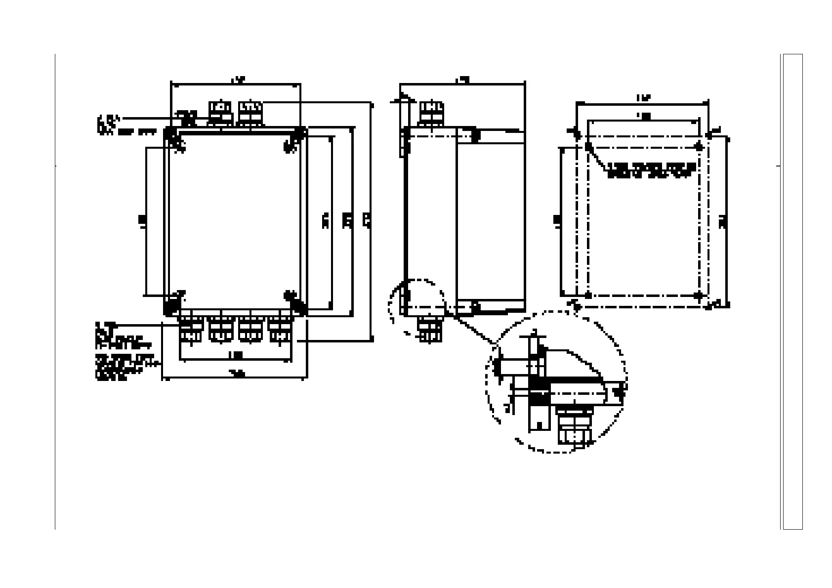
BZ-056C
DIMENTIONAL SKETCH
ZENER BARRIER UNIT TYPE BZ-32/1-4
UNIT MAY BE MOUNTED IN ANY ORIENTATION.
Merk: Festehull for boks til vegg, og lokk til boks er konsentriske.
For å beholde beskyttelsesgrad, IP55.
Note: In order to maintain encapsulation rating, IP55, mounting
holes for box to wall are concentric to the lid's fixing holes.
SAFE AREA & HAZARDOUS AREA CABLES MUST BE
SEPARATED BY MIN. 50mm INSIDE AND OUTSIDE OF THE
HOUSING.
SAFE AREA
CONNECTIONS ONLY.
HAZARDOUS AREA
CONNECTIONS ONLY.

Related product manuals