EasyManua.ls Logo

AVG BOSTON - Page 6

AVG BOSTON
Print Icon
To Next Page IconTo Next Page
To Next Page IconTo Next Page
To Previous Page IconTo Previous Page
To Previous Page IconTo Previous Page
Loading...
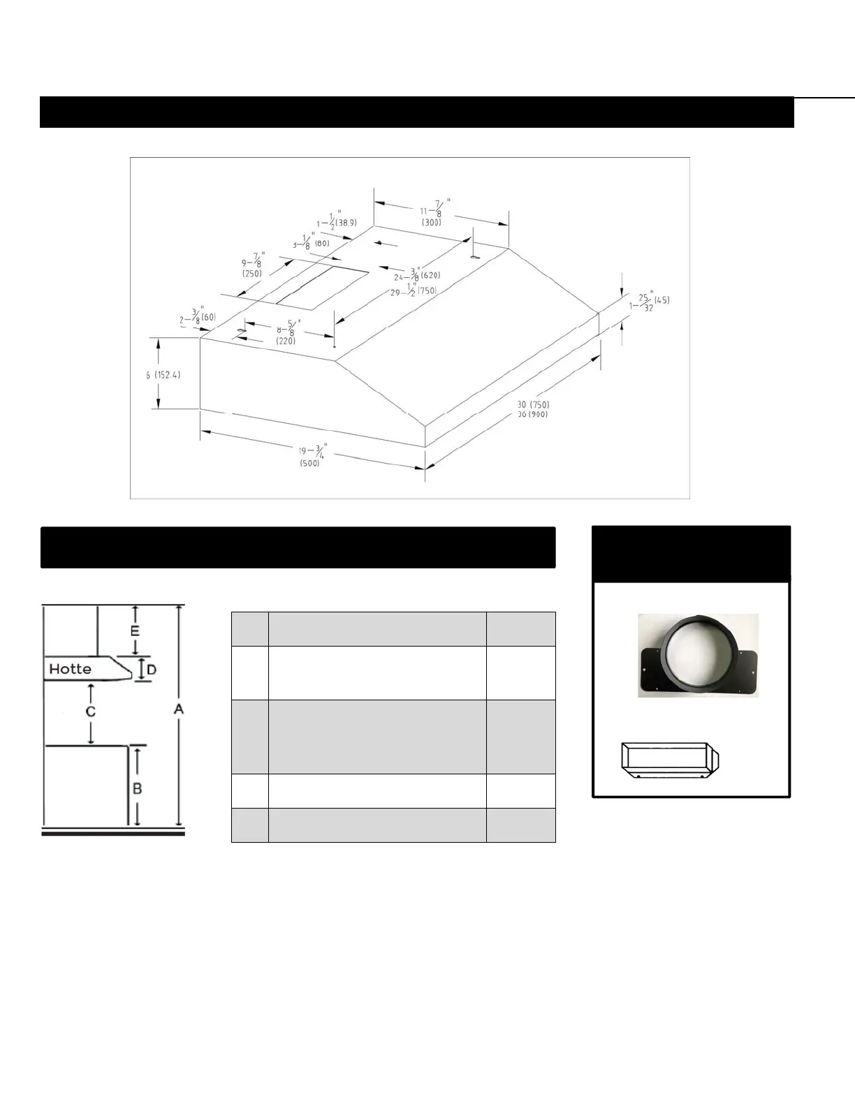
AVB-306RS/AVB-366RS
Dimensions

Lesrenseignementsquecettefichecontientsontfondéssurdessourcesquenouscroyonsfiables,maisnousnepouvonslesgarantir
etilspeuventparailleursêtreincompletset/ouchangéssanspréavis.
A Hauteurduplancherauplafond Variable
B
Hauteurduplancheraucomptoir
(habituellementstandard)
36"
C
Hauteurrecommandéeentrela
surfacedecuissonetledessousde
lahotte
28"30"
D Hauteurdelahotte 6"
E Hauteurdelacheminée N/A
Mesures Installation
Sortie(s)
Surledessus:6" rond
Versl’arrière:3¼" x 10"
6