EasyManua.ls Logo

Axminster AS408 - Troubleshooting; Wiring Diagram

Axminster AS408
28 pages
Print Icon
To Next Page IconTo Next Page
To Next Page IconTo Next Page
To Previous Page IconTo Previous Page
To Previous Page IconTo Previous Page
Loading...
23
WHITE
AXMINSTER
W
Troubleshooting...
Motor will not run. 1. Defective or broken
“ON -OFF” switch.
2. Defective or damaged
switch cord.
3. Defective or damaged
switch relay.
4. Burned out motor.
5. Blown fuse.
1-3. Replace all broken or
defective parts before using
the sander.
4. Contact Axminster Tool
Centre on 0800 371822 &
asked to be transferred to
the“Technical Sales”
department.
Machine slows down while
sanding.
1. Applying to much pressure
to workpiece.
1. Apply less pressure to
sanding surface.
Sanding belt runs off pulleys. 1. Belt NOT tracking properly. 1. Adjust tracking (See page
21) on how to track the belt.
Wood burns while sanding. 1. Sanding disc or belt is
worn.
2. Excessive pressure being
applied to workpiece.
1. Replace the disc or belt.
2. Reduce pressure being
applied to workpiece.
PROBLEM POSSIBLE CAUSE REMEDY
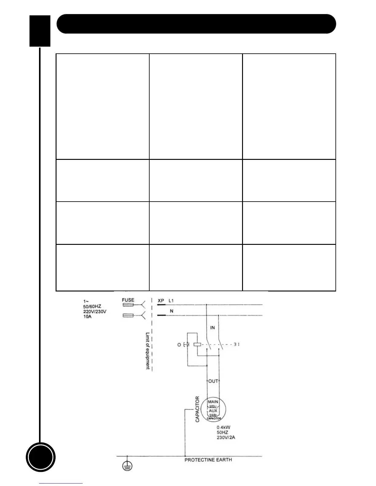
Wiring Diagram

Related product manuals