EasyManua.ls Logo

Backyard Discovery Aurora - Page 38

Backyard Discovery Aurora
51 pages
Print Icon
To Next Page IconTo Next Page
To Next Page IconTo Next Page
To Previous Page IconTo Previous Page
To Previous Page IconTo Previous Page
Loading...
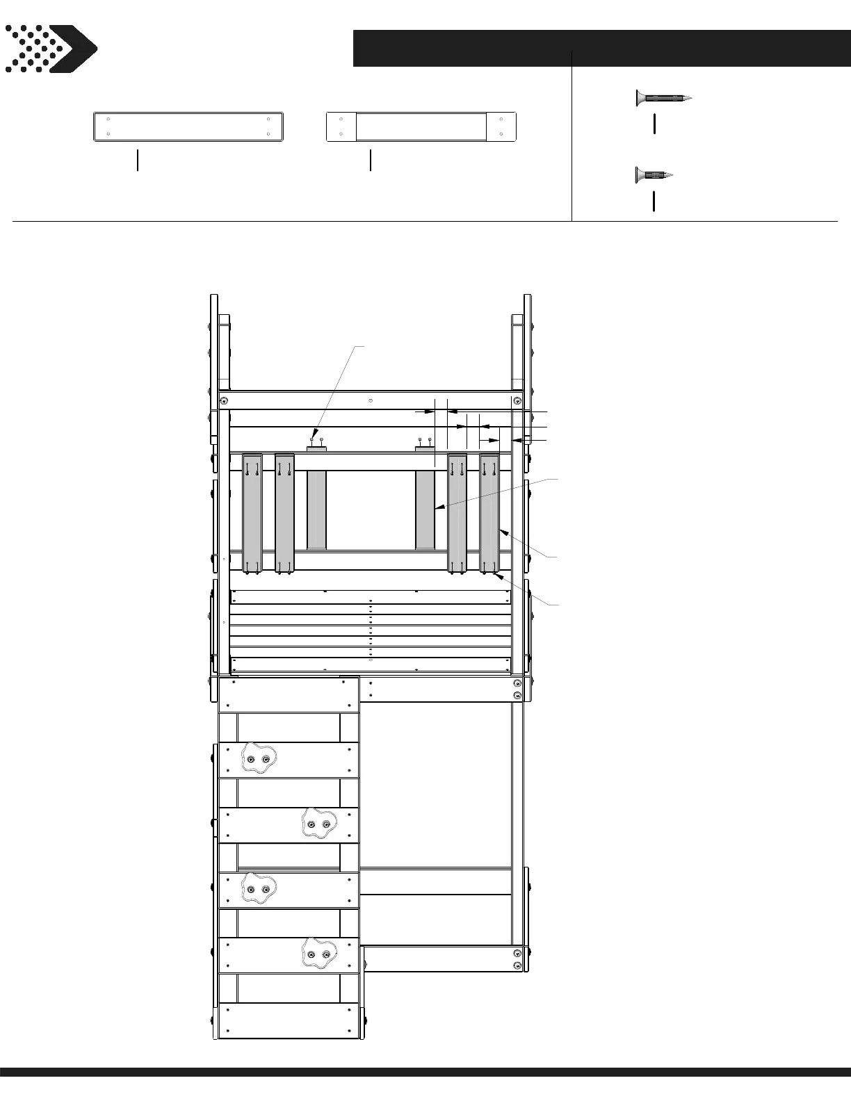
FORT ASSEMBLY
Ǣǻrƻˠ1
SCREW PFH
8x3/4
(8)
H100121
SCREW PFH
8x1 1/8
(16)
H100088
PICKET - W4L13282
1"x2 3/8"x15 1/8" (24x60x385)
J2
(2)
PICKET - W4L13281
5/8"x2 3/8"x15 1/8" (16x60x385)
N6
(4)
1 1/2"
1 1/2"
1 1/2"
ˠˡˠ
ʹɮ˧ʺ
ǢNNJrɟ˚˧ɮˢˀˣ˃
˟˧˧
ʹɮˠ˥ʺ
ǢNNJrɟ˚ˠˠˀ˧˃
ŗ˥
ʹɮˣʺ
ğˡ
ʹɮˡʺ
38

Related product manuals