EasyManua.ls Logo

Baja 192 Islander - Electrical Systems

Default Icon
82 pages
Print Icon
To Next Page IconTo Next Page
To Next Page IconTo Next Page
To Previous Page IconTo Previous Page
To Previous Page IconTo Previous Page
Loading...
192 Islander
®
6.4
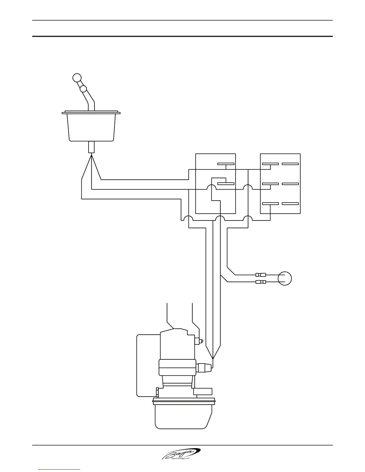
seCtIon 6 • eleCtrICal systeMs
drIve puMp
(FIg. 6.4.1)
TRAILER TRIM
BLUE/WHITE
RED
GREEN/WHITE
14 AWG RED
14 AWG GREEN
14 AWG BLUE
14 AWG PURPLE
TRAILER LIMIT
SWITCH
TO GROUND
BLOCK
TO ENGINE
STARTER
8 AWG
BLACK
8 AWG
RED
100
AMP

Table of Contents

Related product manuals