EasyManua.ls Logo

Baldor BC141 - Page 11

Baldor BC141
33 pages
Print Icon
To Next Page IconTo Next Page
To Next Page IconTo Next Page
To Previous Page IconTo Previous Page
To Previous Page IconTo Previous Page
Loading...
J1
Motor ArmatureMotor Field
(Shunt Motors Only)
DC Tach-Generator
(Set J2 to "T" Position)
Main Speed PotentiometerAC Line
Input
(Front View)
Inhibit Switch
(Close to Stop)
(Open to Run)
Enable Switch
(Open to Stop)
(Close to Run)
Line Fuse
25 Amp
Factory Installed Supplied Separately
Armature Fuse
Wiper
Low
High
Horsepower Resistor®
Supplied Separately
Plug-In
L1
Blue
A+
F-
Red
ACCEL
DECEL
EN
-
+
M
-
+
CONN1
P2
G
-
+
1000
7V
PWR ON
230V 115V
I1
T
B
F+
A-
T 90V 180V
J2
CL
L2
P3
MAX
P1
MIN
I2
IR
CL
Plug-In Horsepower
Resistor® and
Armature Fuse Kit
supplied separately
See Section 9,
on page 21.
10
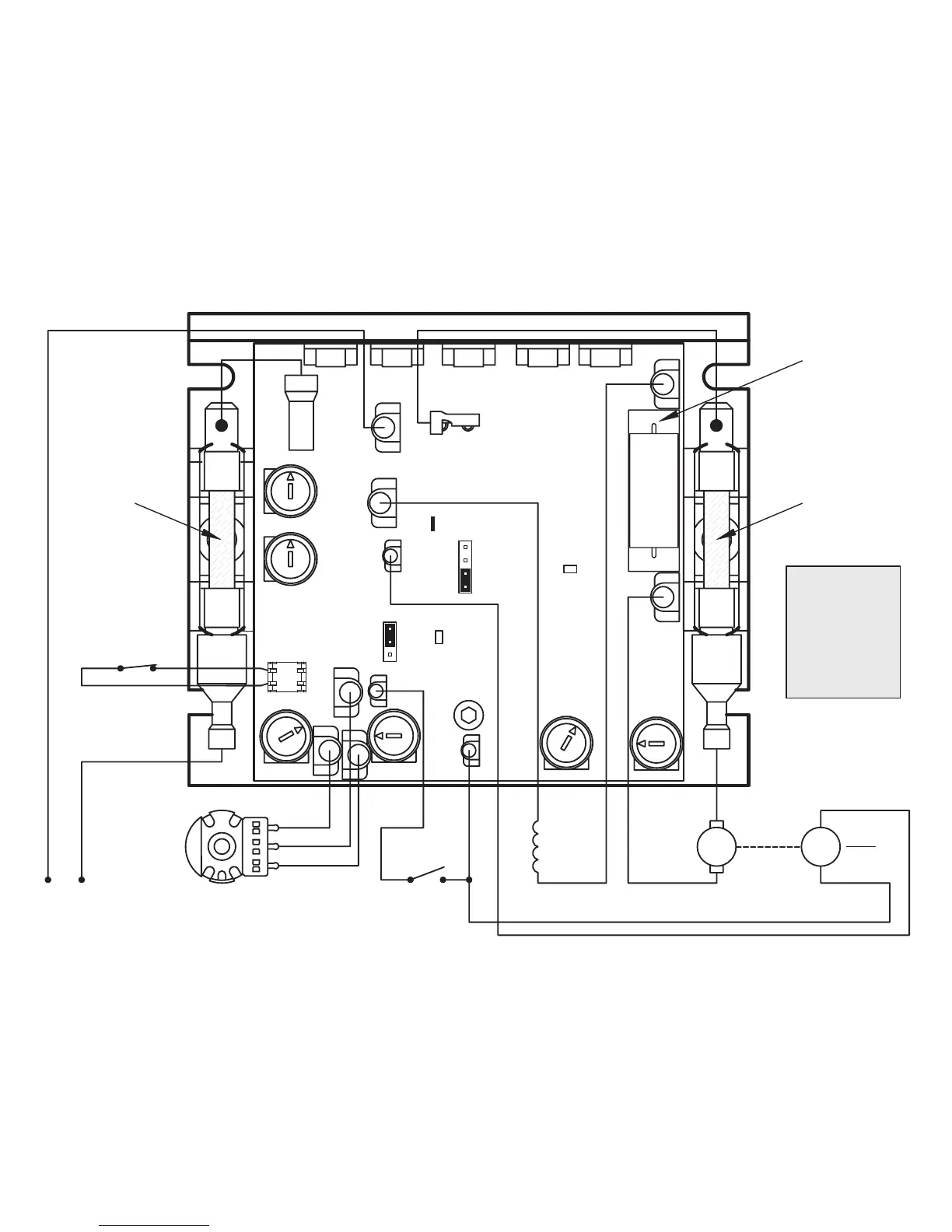
FIGURE 1 – CONTROL LAYOUT & GENERAL CONNECTION DIAGRAM (Catalog No. BC142-6 Shown)

Other manuals for Baldor BC141

Related product manuals