EasyManua.ls Logo

B&C Technologies HE-65 - Page 23

Default Icon
49 pages
Print Icon
To Next Page IconTo Next Page
To Next Page IconTo Next Page
To Previous Page IconTo Previous Page
To Previous Page IconTo Previous Page
Loading...
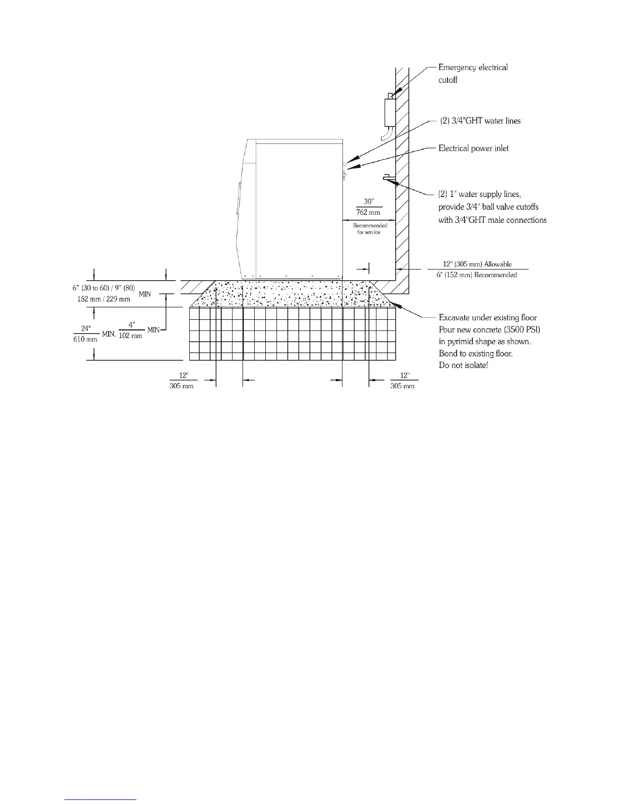
Figure 4.5: Machine Foundation Detail
1. Remove the wood skid by unscrewing the carriage bolts holding it to the bottom frame of
the machine.
2. Carefully place the machine over the anchor bolts. Raise and level it 1/2 inch above the floor
on four points, using spacers that can be removed.
3. Fill the spaces between the machine base and floor with machinery grout. Grout completely
under the frame members. Remove front panel and rear panel to gain access to all frame
members. Force grout under the machine base until all voids are filled.
4. Remove the spacers carefully, allowing the machine to settle into the wet grout.
5. Attached the mounting bolt washers and lock nuts to the anchor bolts after the grout has
hardened. Tighten the lock nuts by even increments-one after the other-until all are tightened
evenly and the machine is fastened securely to the floor. The nuts should be tightened in a
diagonal fashion, which will help ensure equal tension at all anchor points. Retighten after
one week of operation and check quarterly thereafter.
19

Related product manuals