EasyManua.ls Logo

Bard MEGA-TEC W090A - Page 134

Bard MEGA-TEC W090A
159 pages
Print Icon
To Next Page IconTo Next Page
To Next Page IconTo Next Page
To Previous Page IconTo Previous Page
To Previous Page IconTo Previous Page
Loading...
Manual 2110-1451D
Page 16 of 28
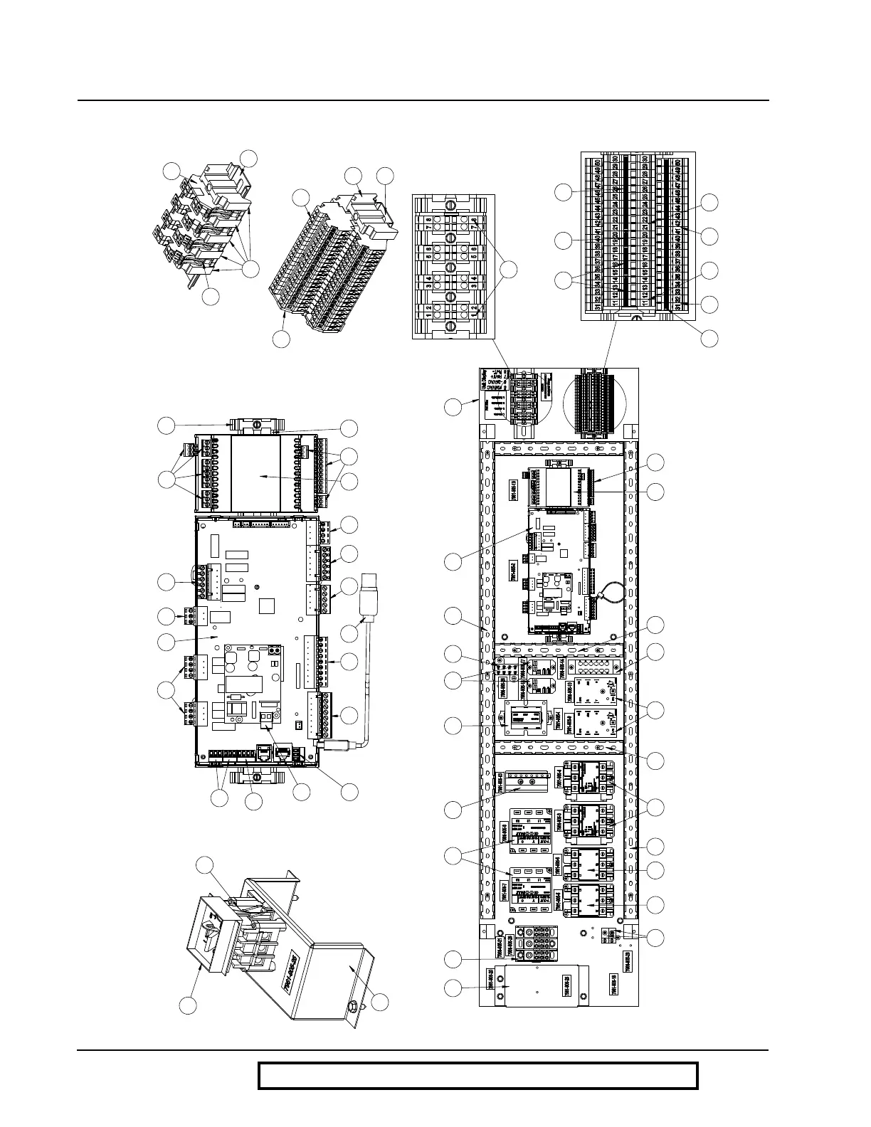
CONTROL PANEL – C (460V), Q (575) & V (415/380V) VOLTAGES
BSEXP-921
17
257
2
10
5
35
13
6
PLC BOARD ASSEMBLY
11
12
8
4
42
7 6
5
89
3
14
14
52
36
20 19
1
32116
20
14
24
26
23
44
43
2 27
43
22
134429
51
41
1-2
217
3-4
35
216
11-30
35
31-50
34
41
25
33 30
31
3739
38
32
215
This drawing to be used for reference for pages 17 and 18

Table of Contents

Related product manuals