EasyManua.ls Logo

Bard W42AC-A - Page 49

Bard W42AC-A
104 pages
Print Icon
To Next Page IconTo Next Page
To Next Page IconTo Next Page
To Previous Page IconTo Previous Page
To Previous Page IconTo Previous Page
Loading...
Manual 2100-692H
Page 13 of 44
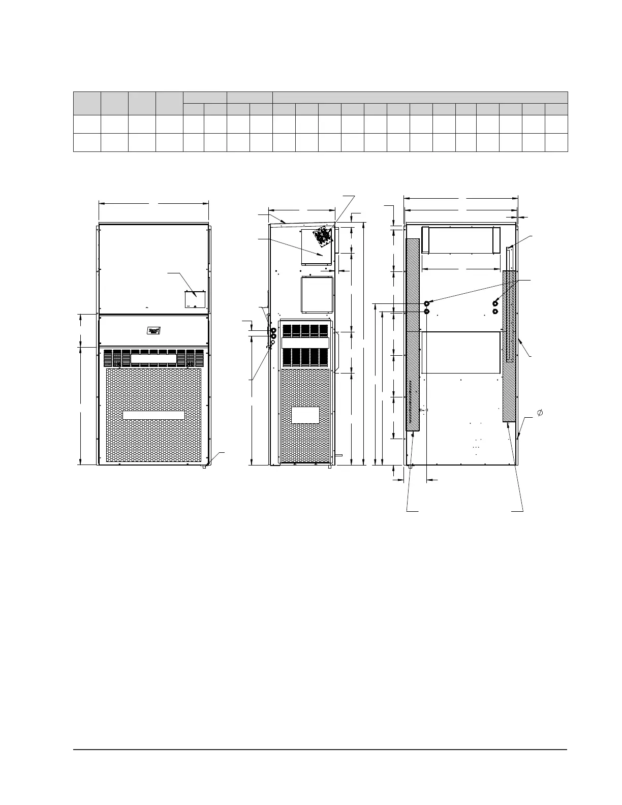
Width
(W)
Depth
(D)
Height
(H)
Supply Return
A B C B E F G I J K L M N O R S T
W42AC
W48AC
42.00 25.52 84.75 9.88 29.88 15.88 29.88 43.88 12.63 39.06 30.06 43.25 26.94 55.59 52.59 8.82 43.00 1.44 16.00 1.88
W60AC
W72AC
42.00 25.52 92.88 9.88 29.88 15.88 29.88 43.88 12.63 45.00 30.06 49.25 35.06 61.72 58.72 8.82 43.00 1.44 16.00 10.00
FIGURE 13
Unit Dimensions
2.000
Supply Air Opening
Inlet
Ventilation Air
Condenser Air Outlet
Return Air Opening
Cond. Air
Exhaust Air
MIS-3978 B
Access Panel
(Lockable)
Disconnect
C. Breaker/
Filter Behind Control Panel Door
Optional
Electrical
Entrance
Drain
W
G
F
High Voltage
Electrical
Panel
Electric Heat
Heater Access
Entrance
4° Pitch
Rain Hood
Built In
Low Voltage
Electrical
Entrance
A
C
I
K
D
H
2.250
J
1.375
Mounting
Side Wall
Brackets
(Built In)
Location
Shipping
Flashing
Top Rain
DO NOT PLACE ELECTRICAL
ENTRANCES IN SHADED AREAS
ABOVE DUE TO POTENTIAL
INTERFERENCE WITH COPPER TUBING
.375
B
E
O
M
N
T
S
S
S
S
S
L
R
.375
TYP.
All dimensions are in inches. Dimensional drawings are not to scale.

Table of Contents

Other manuals for Bard W42AC-A

Related product manuals