EasyManua.ls Logo

Barton 94023 - Unpacking Your Ice Maker; Installation Location Requirement

Barton 94023
20 pages
Print Icon
To Next Page IconTo Next Page
To Next Page IconTo Next Page
To Previous Page IconTo Previous Page
To Previous Page IconTo Previous Page
Loading...
7
UNPACKING YOUR ICE MAKER
1. Remove the exterior and interior packaging. Check if all the accessories, including instruction manual, ice
scoop, white water supplying hose, 1/4 inches to 1/2 inches water quick connector and the water draining
pipe, etc., are inside or not. If any parts are missing, please contact our customer service.
2. Remove the tapes for xing the door and inner cabinet, ice scoop, etc.. Roughly clean the inner cabinet
& ice scoop with wet cloth.
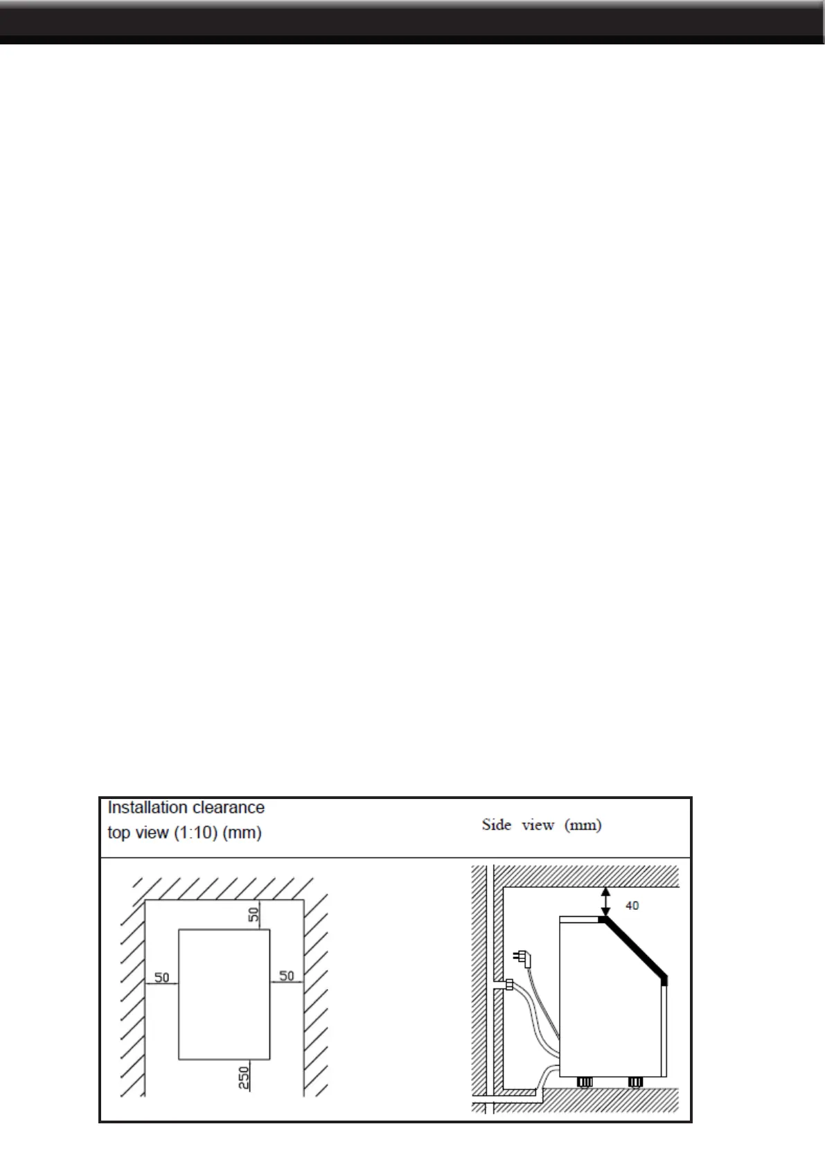
3. Put the ice maker on a level & at oor, without direct sunlight and other sources of heat (i.e.: stove,
furnace, radiator). Make sure that there is at least 8 inches gap between the air outlet and the obstacles,
and at least 2 inches between Left/Right side and the wall.
4. Allow 4 hours for the refrigerant uid to settle before plugging the ice maker in if the unit maybe fall upside
down during shipping or transportation.
5. The appliance must be positioned so that the plug is accessible.
WARNING: Only use drinking water. For manual water supplying, ll with potable water only. For automatic
water supplying, connect to the potable main water supply only.
INSTALLATION LOCATION REQUIREMENT
A) This unit is not for outdoor use. Keep the proper room temperature and inlet water temperature according
to above specication table. Otherwise it will affect the ice making performance.
B) This unit should not be located near any heat resource.
C) The unit should be located on a rm & level foundation at normal counter top height.
D) There must be at least 6 inches clearance at rear side for connection and 8 inches clearance in front to
open the door and keep good air circulation.
E) Do not put anything on the top of the ice maker.
OPERATION

Related product manuals