EasyManua.ls Logo

Baruffaldi CE Series - Gearbox in High Speed Mode (1:1); Gearbox in Low Speed Mode (1:I); Gearbox in Neutral Mode

Baruffaldi CE Series
59 pages
Print Icon
To Next Page IconTo Next Page
To Next Page IconTo Next Page
To Previous Page IconTo Previous Page
To Previous Page IconTo Previous Page
Loading...
USE AND MAINTENANCE MANUAL
2-Speed Gearboxes Series CE
M.CE.GEN.ENG.DOCX
Issued
2018
Rev.03
Page 15 / 59
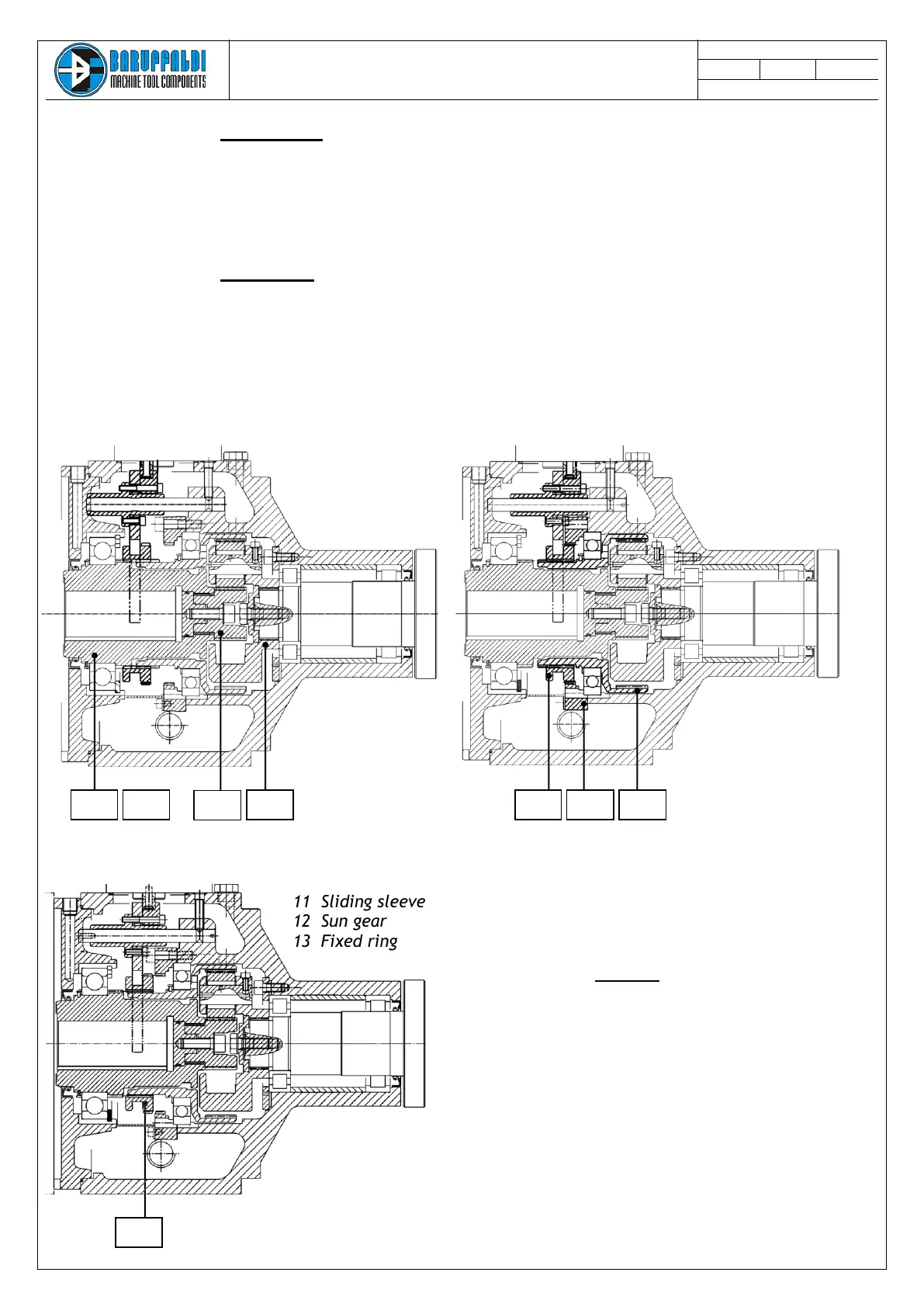
2.2.1 Gearbox in high speed mode (1:1)
In this operating mode, the sliding sleeve (11) is engaged with the pinion (09).
Motion coming from the motor goes to the planetary unit both through the ring gear (10) and the sun
gear (12), so the planet carrier (08) turns at the same speed of the motor.
The gearbox is in 1:1 mode (direct mode).
2.2.2 Gearbox in low speed mode (1:i)
In this operating mode, the sliding sleeve (11) is engaged with the fixed ring (13).
Motion coming from the motor goes to the planetary unit through the sun gear (12), while the ring gear
(10) is still because it is engaged with the fixed ring (13).
The gearbox is in 1:i mode (reduction mode).
2.2.3 Gearbox in neutral mode
In this operating mode, the sliding sleeve (11) is
engaged neither with the pinion (09) nor with the fixed
ring (13).
Motion coming from the motor goes to the planetary
unit through the sun gear (12), but, being the ring gear
(10) free to rotate, no torque is transmitted to the
planet carrier (or at least a very low value due to
friction).
In this configuration the gearbox is in neutral mode.
11
12
08
13
Low speed mode (1:i)
High speed mode (1:1)
10
08 Planetary gears carrier
09 Pinion
10 Ring gear
11 Sliding sleeve
12 Sun gear
13 Fixed ring
Neutral mode
09
11
11

Table of Contents

Related product manuals