EasyManua.ls Logo

Baumatic BDI460SS - Installing into Kitchen Cabinet

Baumatic BDI460SS
44 pages
Print Icon
To Next Page IconTo Next Page
To Next Page IconTo Next Page
To Previous Page IconTo Previous Page
To Previous Page IconTo Previous Page
Loading...
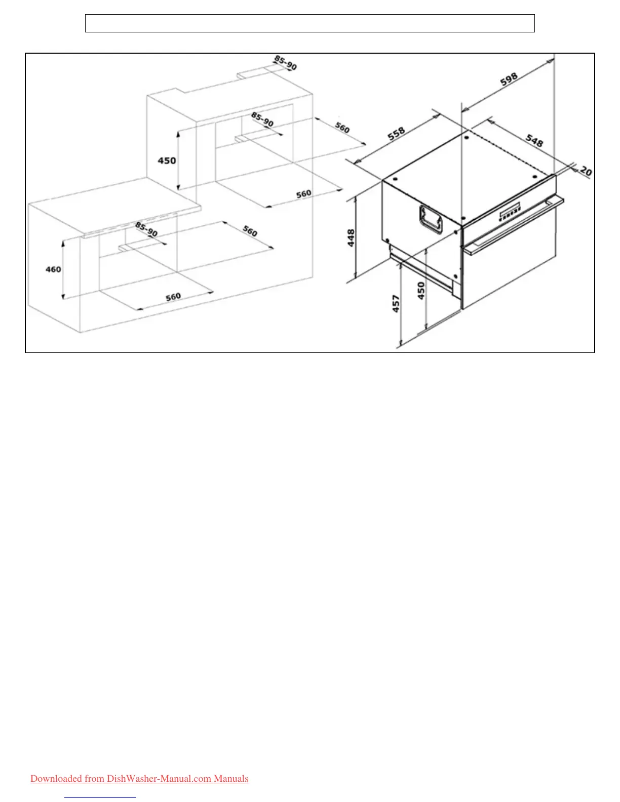
Installing the dishwasher into a kitchen cabinet
o Ensure that the aperture that you will be fitting the dishwasher
into is of the size given in the diagram above.
o Ensure that the rear panel of the furniture housing unit has been
removed and that the ventilation cut out shown is adhered to.
o You must ensure that there is a hole to feed the electrical cable
through. There must also be holes left to connect the appliance
to your mains water supply and to your drain outlet. These steps
must be done before commencing the rest of the installation
process.
o IMPORTANT: The stop valve for your water supply MUST be
easily accessible during an emergency.
o Before proceeding with the rest of the installation, you must
connect the inlet hose (page 39) and the outlet hose (page 40)
to the rear of the appliance.
o Lift the dishwasher towards the aperture and then feed the
electrical cable, inlet hose and outlet hose through the holes in
the housing unit that you made previously.
38
Downloaded from DishWasher-Manual.com Manuals

Related product manuals