EasyManua.ls Logo

Belimo AF24-MFT US - Proportional Potentiometric Control - Wiring Diagrams

Belimo AF24-MFT US
27 pages
Print Icon
To Next Page IconTo Next Page
To Next Page IconTo Next Page
To Previous Page IconTo Previous Page
To Previous Page IconTo Previous Page
Loading...
800-543-9038 USA 866-805-7089 CANADA 203-791-8396 LATIN AMERICA
33
W015_08
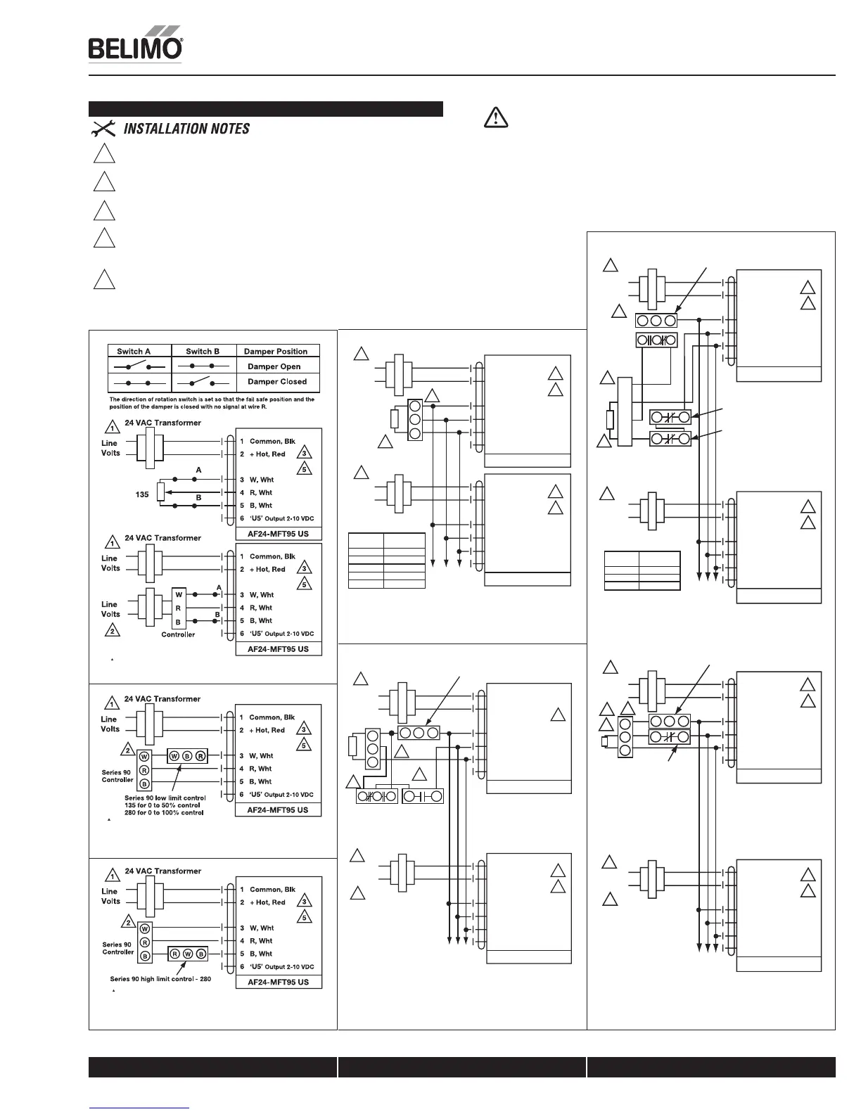
Override of AF24-MFT95 US
W016_08
AF24-MFT95 US used with a Series 90
controller and a Series 90 low limit control
W017_08
AF24-MFT95 US used with a Series 90
controller and a Series 90 high limit control
1
3
5
4
2
1 Common, Blk
2 + Hot, Red
3 W, Wht
4 R, Wht
5 B, Wht
6 ‘U5’
Output 2-10 VDC
AF24-MFT95 US
Line
Volts
24 VAC Transformer
1
3
5
1 Common, Blk
2 + Hot, Red
3 W, Wht
4 R, Wht
5 B, Wht
6 ‘U5’
Output 2-10 VDC
AF24-MFT95 US
W
R
B
To other
actuators
Resistor Kit No. ZG-R03
Series 90
Controller
Shunting
Resistor
Line
Volts
No. of
actuators Resistance
2 1407
3 71.57
4 47.57
5 37.57
6 287
W018
Wiring multiple actuators to a Series 90
controller.
1
3
2
2
5
4
1 Common, Blk
2 + Hot, Red
3 W, Wht
4 R, Wht
5 B, Wht
6 ‘U5’
Output 2-10 VDC
AF24-MFT95 US
Line
Volts
24 VAC
Transformer
1
3
5
1 Common, Blk
2 + Hot, Red
3 W, Wht
4 R, Wht
5 B, Wht
6 ‘U5’
Output 2-10 VDC
AF24-MFT95 US
To other
actuators
Series 90
Controller
S963A
Minimum Position
Potentiometer
H205 Change-
over Controller
Occupied
Contact
Shunting
Resistor
Line
Volts
RB
W
B
R
W
W
R
B
W019
Wiring multiple actuators to a Series 90
controller using a minimum position
potentiometer.
1
2
3
5
2
4
1 Common, Blk
2 + Hot, Red
3 W, Wht
4 R, Wht
5 B, Wht
6 ‘U5’
Output 2-10 VDC
AF24-MFT95 US
Line
Volts
24 VAC
Transformer
1
3
3
5
1 Common, Blk
2 + Hot, Red
3 W, Wht
4 R, Wht
5 B, Wht
6 ‘U5’
Output 2-10 VDC
AF24-MFT95 US
W
W
RR
Y
B
To other
actuators
Resistor Kit No. ZG-R06
Q209A
Minimum Position
Potentiometer
H205
Changeover
Controller
W973, W7100
Controller
Occupied
Contact
Honeywell T675A
Morning Warmup
Shunting
Resistor
Line
Volts
2
1
3
5
1 Common, Blk
2 + Hot, Red
3 W, Wht
4 R, Wht
5 B, Wht
6 ‘U5’
Output 2-10 VDC
AF24-MFT95 US
To other
actuators
Line
Volts
No. of
actuators Resistance
2 13007
3 9107
4 7687
BR
W
W
R
B
1
3
2
5
4
1 Common, Blk
2 + Hot, Red
3 W, Wht
4 R, Wht
5 B, Wht
6 ‘U5’
Output 2-10 VDC
AF24-MFT95 US
Line
Volts
24 VAC
Transformer
Honeywell Q209A
Minimum Position
Potentiometer
Shunting
Resistor
R
R
B
W
W
W
R
B
Used with the W973 and W7100 controllers.
Honeywell
T675A Morning
Warmup
W973, W7100
T775
W020
Typical wiring diagrams for multiple
actuators used with the W973, W7100 and
T775 controllers.
AF24-MFT95 US
Proportional Damper Actuator, Spring Return Fail-Safe, 24 V for Use with
Honeywell® Electronic Series 90, or a 0 to 135 7 input
Proportional Potentiometric Control - Wiring Diagrams
1
Provide overload protection and disconnect as required.
2
CAUTION Equipment damage!
Actuators and controller must have separate transformers.
3
Consult controller instruction data for more detailed installation
information.
4
Resistor value depends on the type of controller andthe number of
actuators. No resistor is used for one actuator. Honeywell resistor kits
may also be used.
5
To reverse control rotation, use the reversing switch.
WARNING Live Electrical Components!
During installation, testing, servicing and troubleshooting of this product, it maybe
necessary to work with live electrical components. Have a qualified licensed electrician
or other individual who has been properly trained in handling live electrical components
perform these tasks. Failure to follow all electrical safety precautions when exposed to live
electrical components could result in death or serious injury.
K20901 - 01/09 - Subject to change. © Belimo Aircontrols (USA), Inc.

Related product manuals