EasyManua.ls Logo

Belling GG720LP - Page 28

Belling GG720LP
40 pages
Print Icon
To Next Page IconTo Next Page
To Next Page IconTo Next Page
To Previous Page IconTo Previous Page
To Previous Page IconTo Previous Page
Loading...
Installation Instructions
Method 4: Tall housing unit
with internal height of 710mm
or more
Sitting the appliance.
If the appliance is to be installed near
to a corner where the adjacent
surfaces run at right angles forward of
the appliance, there must be a gap of
at least 90mm between the appliance
and the cabinets, to prevent
overheating of the surfaces.
Alternatively, a non - combustible
cover should be applied to the surface
e.g. a toughened glass sheet, to
protect the surface from thermal
damage or staining from cooking fats
etc. This cover should protect the
surface from the top of the appliance
to at least half way down the cooker
cavity.
When installed in a typical 600mm
deep built in housing unit, the false
back should be removed from the
housing unit, to provide the necessary
depth for installation.
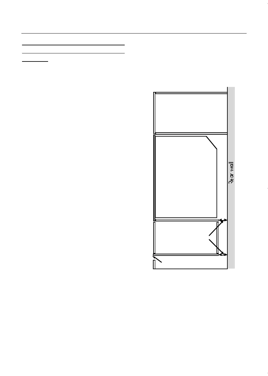
When the back is removed, it is
normally the case that the support
shelf for the appliance leaves a gap
between the back edge of the support
shelf and the rear wall of
approximately 80mm.
If no gap occurs between the back
edge of the shelf and the wall behind
the unit, you must create a gap of at
least 30mm by shortening the shelf
and any other shelf below the
appliance.
26
Note: To prevent the air gap from
being accidentally blocked, a false
back or drawer must be fitted to the
storage compartment below the oven.
Also, under no circumstances must
flammable material be stored either
below or, above the appliance for
safety reasons.
Cut 12mm from the top of any plinth
that may be fitted, or the equivalent in
slots or holes in the plinth below the
oven. (See diagram.)
27353 00 - Belling GG720 14/6/07 14:59 Page 28

Related product manuals