EasyManua.ls Logo

BENDIX R-12DC DBL CHECK RELAY VALVE - Operation; Application; Balance

BENDIX R-12DC DBL CHECK RELAY VALVE
8 pages
Print Icon
To Next Page IconTo Next Page
To Next Page IconTo Next Page
To Previous Page IconTo Previous Page
To Previous Page IconTo Previous Page
Loading...
2
OPERATION
APPLICATION
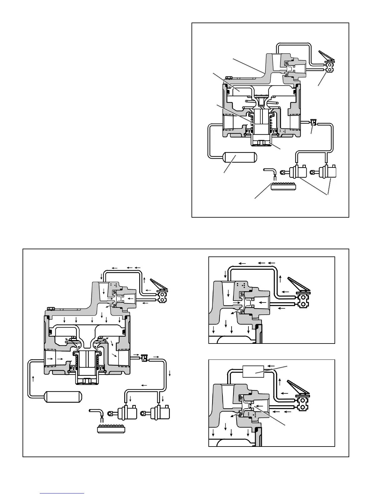
Under normal conditions, the internal biased double check
valve assures that the primary service signal controls the
valve. Air pressure delivered to the primary service port
enters the small cavity above the piston and moves the
piston down. The exhaust seat moves down with the piston
and seats on the inner or exhaust portion of the inlet/exhaust
valve, sealing off the exhaust passage. At the same time,
the outer or inlet portion of the inlet/exhaust valve moves
off its seat, permitting supply air to flow from the reservoir,
past the open inlet valve and into the service brake
chambers. In the event of a loss of the primary service
line, (see Figure 4) the double check valve mechanism in
the cover of the R-12DC
valve will move, shutting off the
primary service line, and instead allow the secondary service
line to apply the air pressure needed to operate the valve.
Note: Secondary service line may leak out of the primary
service at control pressures up to 20 psi when the primary
signal is not present.
BALANCE
The air pressure being delivered by the open inlet valve
also is effective on the bottom area of the relay piston.
BRAKES
APPLIED
FIGURE 4 - R-12DC
APPLIED POSITION (SHOWING BIASED DOUBLE CHECK OPERATIONAL VIEWS)
SECONDARY
CONTROL LINE
SUPPLIES RELAY
PISTON
CONTROL LINE
FAILURE
NORMAL: BIASED
DOUBLE-CHECK VALVE
ALLOWS PRIMARY
CONTROL LINE SUPPLIES
RELAY PISTON
BRAKE PEDAL
APPLIED
BRAKE PEDAL
APPLIED
BRAKE PEDAL
APPLIED
R-12DC
VALVE
ANTILOCK SENSOR
TONE RING
ANTILOCK
MODULATOR
BRAKE VALVE
(DELIVERY
LINES ARE
SHOWN)
RESERVOIR
BRAKE
CHAMBERS
FIGURE 3 - R-12DC
SECTIONAL VIEW WITH TYPICAL
SYSTEM COMPONENTS
RELAY PISTON
EXHAUST
PORT
INLET
EXHAUST
VALVE

Related product manuals