EasyManua.ls Logo

BFT BFT-P926192 - Page 4

BFT BFT-P926192
Print Icon
To Next Page IconTo Next Page
To Next Page IconTo Next Page
To Previous Page IconTo Previous Page
To Previous Page IconTo Previous Page
Loading...
F
AUX 3 = 0
AUX 3 = 2
AUX 3 = 3
AUX 3 = 4
AUX 3 = 5
AUX 3 = 6
AUX 3 = 7
AUX 3 = 8
AUX 3 = 9
AUX 3 = 10
AUX 0 = 0
AUX 0 = 2
AUX 0 = 3
AUX 0 = 4
AUX 0 = 5
AUX 0 = 7
AUX 0 = 8
AUX 0 = 9
AUX 0 = 10
AUX 0 = 6 AUX 3 = 1
21
24 V
SCA
!
24V
25W
20 21
AUX0
(MAX 1A)
20 21
26 27
!
F3 1,25A T
F1 1,6 AT (220-230V)
F1 3,15 AT (120V)
10L N 11 20 21 26 27 50 51 52 60 61 62 70 71 72 73 74 75
L
N
M1
+
-
AUX 3
(MAX 24V 1A)
24V ~ (-)
24V ~ (+)
24 VSafe
COM
IC 1
IC 2
NO
NO
SAFE 1
STOP
COM
FAULT 1
SAFE 2
FAULT 2
NC
NC
NC
S1
S2
S3
+
-
OK
24V~
24V
!
AUX 0
(MAX 1A)
24V
26 27 50 51
OPEN
CLOSE
S1
S2
+
S1
+
-
S2
-
X1
X1 X1
X1
OPEN
CLOSE STOP
STOP
**
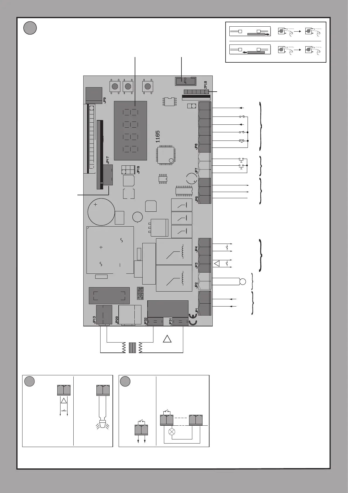
Display + tasti programmazione,
Display plus programming keys,
Acheur et touches de programmation,
Display und Programmierungstasten,
Pantalla más botones de programación,
Display meerdere toetsen programmeur.
Connettore necorsa
Limit switch connector
Connecteur de n de course
Steckverbindung Endschalter
Conector nal de carrera
Connector eindaanslag
Connettore programmatore palmare,
Palmtop programmer connector,
Connecteur programmateur de poche,
Steckverbinder Palmtop-Programmierer,
Conector del programador de bolsillo,
Connector programmeerbare palmtop.
Sicurezze
Safety devices
Sécurités
Sicherheitsvorrichtungen
Dispositivos de seguridad
Veiligheden
Comandi / Commands
Commandes/Bedienelemente
Mandos/ Commandos
Motore / Motor / moteur
Motor /Eindaanslag/Encoder
Alimentazione / Power supply
Alimentation / Stromversorgung
Alimentación /Voeding
**Con logica inversione direzione di apertura = 000 (DIR=DX) / **With reverse logic, opening direction = 000 (DIR=right)
** Avec logique inversion direction d’ouverture = 000 (DIR=DRT) / **Mit Inversionslogik Ö nungsrichtung = 000 (DIR=rechts)
**Con lógica inversión dirección de apertura = 000 (DIR=DER) / **Met logica omkering openingsrichting = 000 (DIR=R)
Alimentazione accessori
Accessories power supply
Alimentation des accessoires
Stromversorgung Zubehör
Alimentación accesorios
Voeding accessoires
Connettore scheda opzionale,
Optional board connector,
Connecteur carte facultative,
Steckverbinder Zusatzkarte,
Conector de la tarjeta opcional,
Connector optionele kaart.
AUX
G2G1
725150 70
24V ~
2
1
TX1
2
1
RX1
4
5
3
SAFE 1 = 0
SAFE 1 = 1
725150 70
24V ~
Vsafe
7352
2
1
TX1
2
1
RX1
4
5
3
4 - ARES ULTRA BT A 1000 - ARES ULTRA BT A 1500
D812201 00100_09

Related product manuals