EasyManua.ls Logo

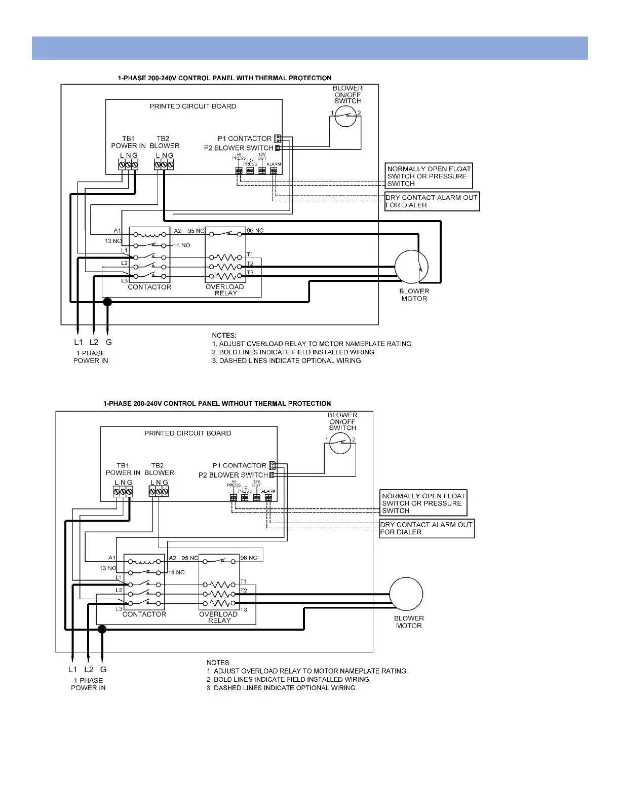
BIO-MICROBICS MicroFAST 0.75 - 1-Phase Large Panel Schematics

Default Icon
30 pages
Print Icon
To Next Page IconTo Next Page
To Next Page IconTo Next Page
To Previous Page IconTo Previous Page
To Previous Page IconTo Previous Page
Loading...
22
LARGE CONTROL PANEL SCHEMATICS

Other manuals for BIO-MICROBICS MicroFAST 0.75

Related product manuals