EasyManua.ls Logo

Bitzer CSH6553-50Y - Page 24

Bitzer CSH6553-50Y
124 pages
Go to English
Print Icon
To Next Page IconTo Next Page
To Next Page IconTo Next Page
To Previous Page IconTo Previous Page
To Previous Page IconTo Previous Page
Loading...
SB-170-1024
CSW6583 .. CSW10593, CSH7673 .. CSH96113
60
457
360
273
1/8-27 NPTF
3 (LP)
1/8-27 NPTF
6
1 1/8-18 UNEF
4
9
12
4 / 8
42
17
551
Ø22 (7/8'')
13
SL
DL
M10x20
16
1/8-27 NPTF
1 (HP)
1/8-27 NPTF
2 (HP)
60
1/8-27 NPTF
5
1 1/8-18 UNEF 5/8-18 UNF
M22x1,5
(Adaptor connection:
Ø16 / 5/8'')
179
62
10
43
43
305
20
Ø21
208
481
94
149
1207
126
415
215
468
550
140
8
132
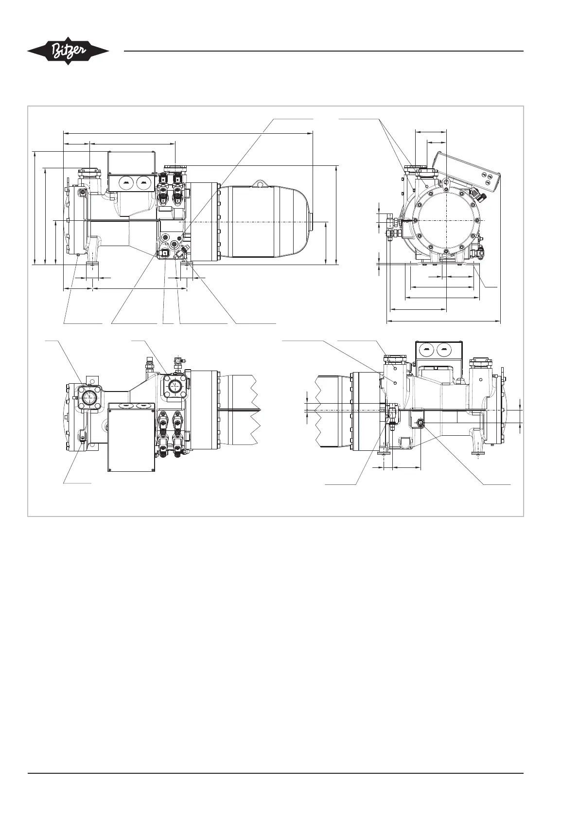
Abb.12: Maßzeichnung CSW6583-40Y .. CSW6593-60(Y)
Darstellung mit optionalem ECO-Ventil (Position 13). Legende für Anschlüsse siehe Tabelle 8, Seite 29.

Table of Contents

Related product manuals