EasyManua.ls Logo

Bitzer CSH6553-50Y - 5 Montage; Transporter Le Compresseur; Centres de Gravité Et Poids

Bitzer CSH6553-50Y
124 pages
Go to English
To Next Page IconTo Next Page
To Next Page IconTo Next Page
To Previous Page IconTo Previous Page
To Previous Page IconTo Previous Page
Loading...
SB-170-1090
5 Montage
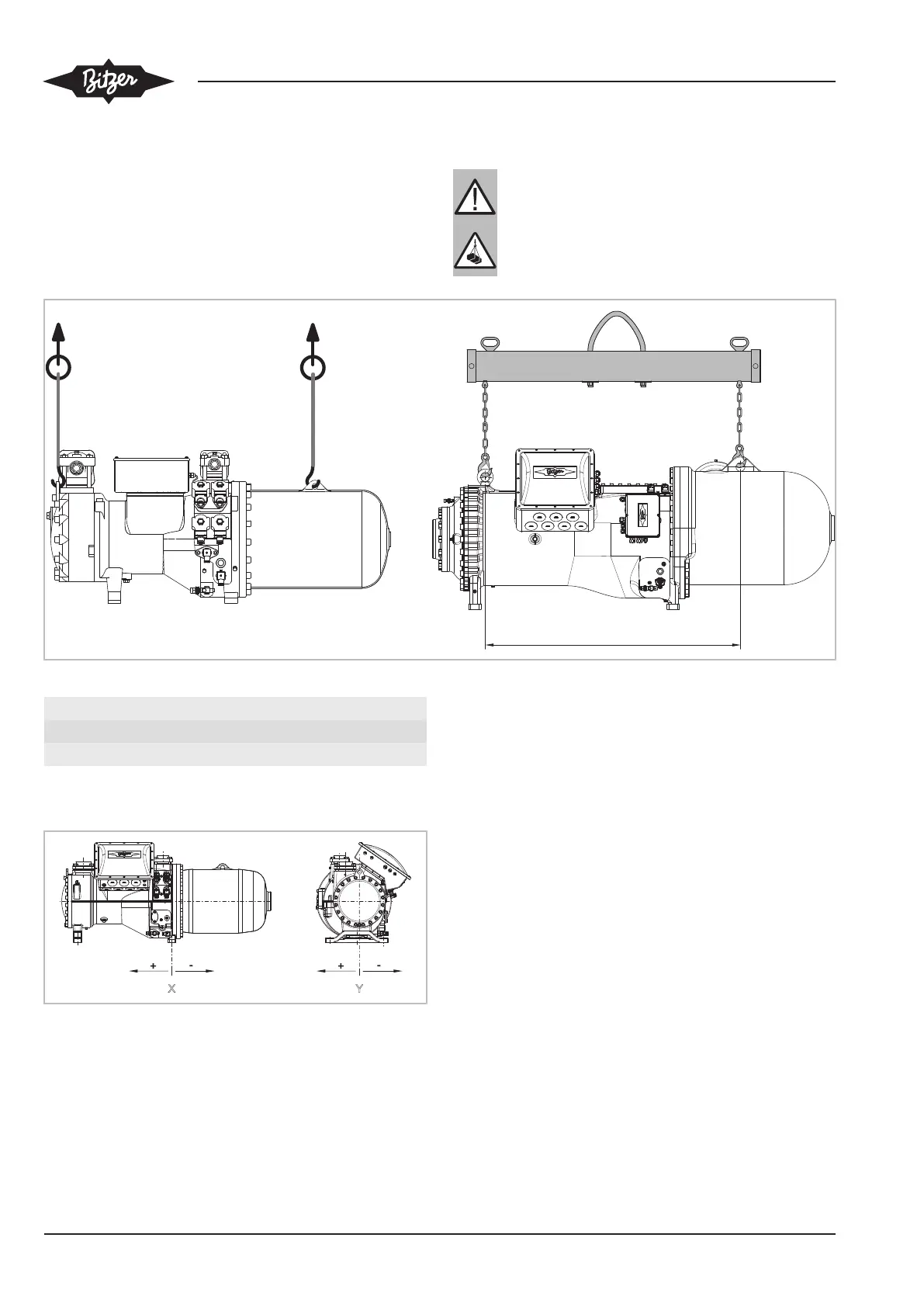
5.1 Transporter le compresseur
Transporter le compresseur vissé à la palette ou le
soulever au moyen d’œillets de suspension. Ne soule-
ver CS.9. et CS.105 qu’au moyen d’une traverse, voir
figure 1, page 90.
Poids 1200..1900 kg (en fonction du type)
DANGER
Charge suspendue!
Ne pas passer en dessous de la machine!
X
Fig.1: Soulever le compresseur. À gauche CS.6. .. CS.8., à droite CS.9. et CS.105
X (mm)
CS.9. 1150
CS.105 1448
5.1.1 Centres de gravité et poids
X Y
Fig.2: Centres de gravité à l’exemple du CSH85

Table of Contents

Related product manuals