EasyManua.ls Logo

Bitzer CSH7563-80Y - Page 24

Bitzer CSH7563-80Y
Print Icon
To Next Page IconTo Next Page
To Next Page IconTo Next Page
To Previous Page IconTo Previous Page
To Previous Page IconTo Previous Page
Loading...
SB-170-1024
CSW6583 .. CSW10593, CSH7673 .. CSH96113
60
457
360
273
1/8-27 NPTF
3 (LP)
1/8-27 NPTF
6
1 1/8-18 UNEF
4
9
12
4 / 8
42
17
551
Ø22 (7/8'')
13
SL
DL
M10x20
16
1/8-27 NPTF
1 (HP)
1/8-27 NPTF
2 (HP)
60
1/8-27 NPTF
5
1 1/8-18 UNEF 5/8-18 UNF
M22x1,5
(Adaptor connection:
Ø16 / 5/8'')
179
62
10
43
43
305
20
Ø21
208
481
94
149
1207
126
415
215
468
550
140
8
132
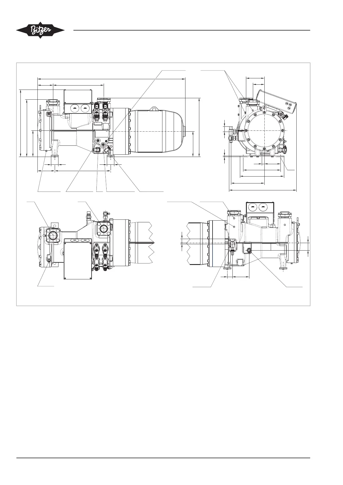
Abb.12: Maßzeichnung CSW6583-40Y .. CSW6593-60(Y)
Darstellung mit optionalem ECO-Ventil (Position 13). Legende für Anschlüsse siehe Tabelle 8, Seite 29.

Table of Contents

Related product manuals