EasyManua.ls Logo

Bitzer CSH9573-240Y

Bitzer CSH9573-240Y
124 pages
Go to English
To Next Page IconTo Next Page
To Next Page IconTo Next Page
To Previous Page IconTo Previous Page
To Previous Page IconTo Previous Page
Loading...
SB-170-10 61
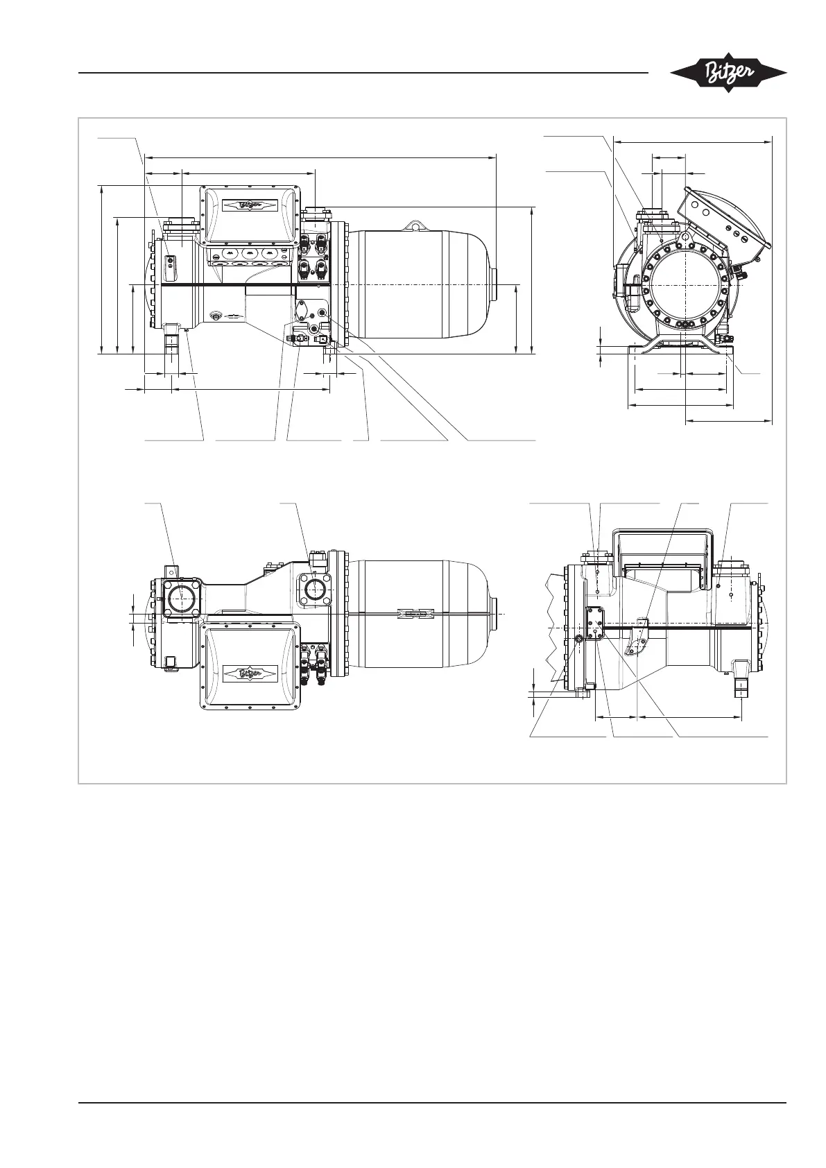
Fig.10: Dimensional drawing CSH8553-80Y .. CSH8593-180(Y)
Legend for connections, see table 8, page 68.

Table of Contents

Related product manuals