EasyManua.ls Logo

Blanco TAMPERA Hot - Electric Circuit Diagram

Blanco TAMPERA Hot
Print Icon
To Next Page IconTo Next Page
To Next Page IconTo Next Page
To Previous Page IconTo Previous Page
To Previous Page IconTo Previous Page
Loading...
48 49
PULIZIA, CURA E MANUTENZIONE
12.2 Controllare il funzionamento dell‘unità di sicurezza
Ogni sei mesi si deve controllare il corretto funzionamento della valvola
di sicurezza. A tal ne ruotare brevemente il cappuccio della valvola
limitatrice della pressione dell‘unità di sicurezza di circa 90°. La valvola
ora si apre e nello scarico uisce acqua. Vericare che lo scarico sia
installato correttamente e che l‘acqua possa deuire. Dopo aver rilasciato
il cappuccio, non deve fuoriuscire più acqua. In caso contrario la valvola
limitatrice della pressione non chiude più correttamente e l‘unità di sicurezza
deve essere sostituita.
13. Dati tecnici
13.1 Misure e attacchi
Cavo elettrico
EU: Tipi E+F CEE 7/7 Schuko
UK: Tipo G / BS 1363 British 3 pins (13 A fuse)
Attacco ingresso acqua fredda
Filettatura interna G 1/2"
Attacco uscita acqua calda
Filettatura esterna G 3/8"
PULIZIA, CURA E MANUTENZIONE
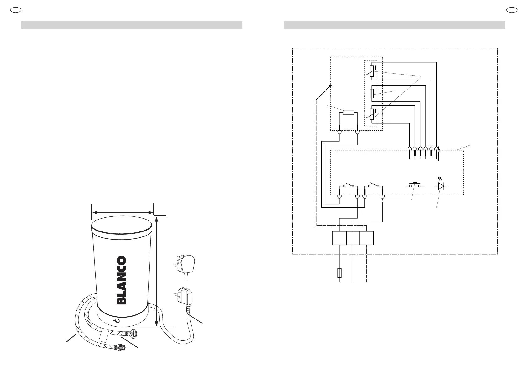
13.2 Schema elettrico
1
2
3
4
5
6
L N
PE
1 Limitatore della temperatura
2 Sonda termica
3 Elemento riscaldate
4 Elettronica
5 Elemento di comando
6 Indicatore a LED
ITIT
ø 229 mm
337 mm
1600 mm
350 mm
800 mm
EU
Art.-Nr: 525 233
UK
Art.-Nr: 525 788

Table of Contents

Other manuals for Blanco TAMPERA Hot