EasyManua.ls Logo

Blueridge BM12MCD - Indoor Unit Installation; Selecting the Installation Location

Default Icon
28 pages
Print Icon
To Next Page IconTo Next Page
To Next Page IconTo Next Page
To Previous Page IconTo Previous Page
To Previous Page IconTo Previous Page
Loading...
8
Indoor Unit Installation
Installation Instructions – Indoor Unit
NOTE: Panel installation should be performed after piping and wiring have been completed.
Indoor Unit
Installation
Page 16
Revised 5/14/2020
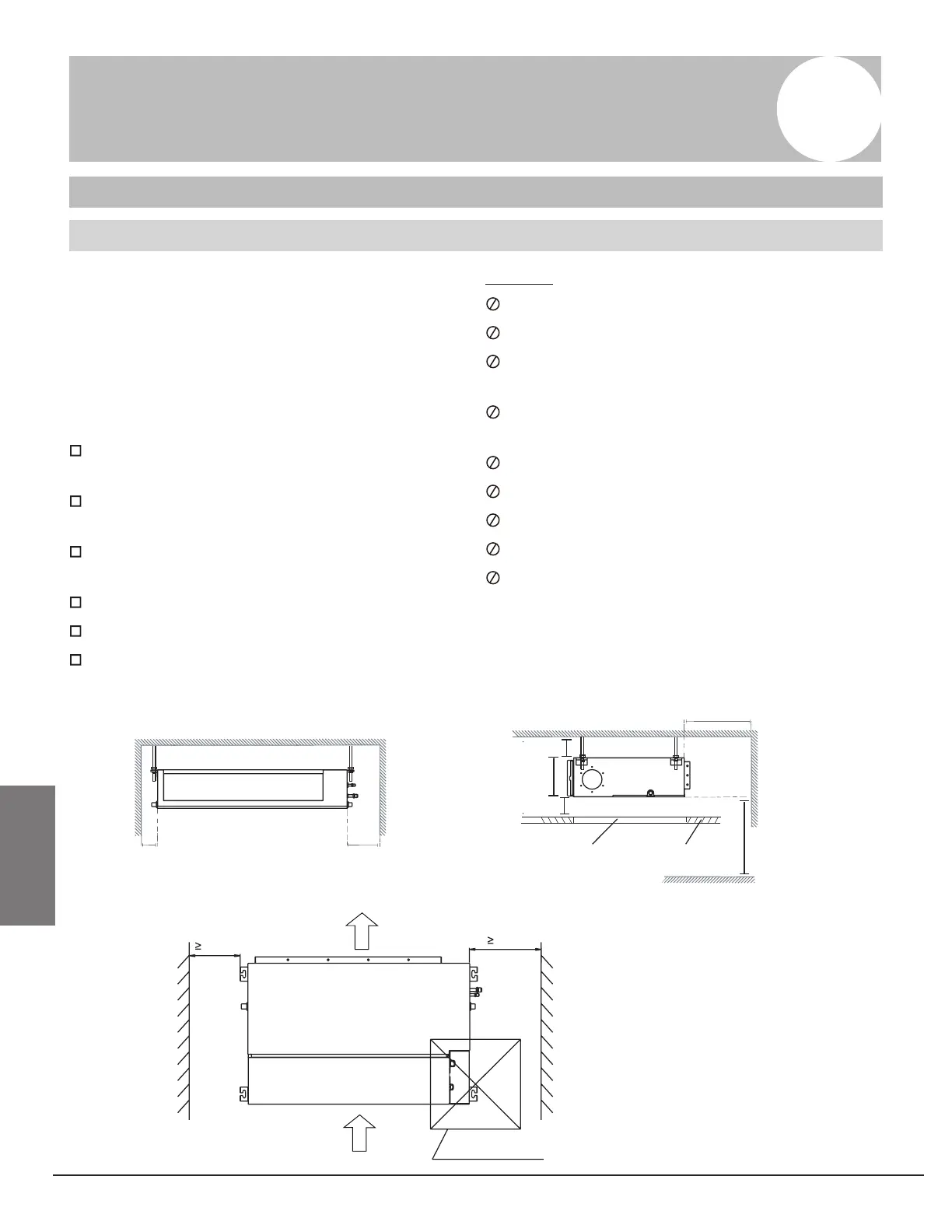
Step 1: Select installation location
Before installing the indoor unit, you must
choose an appropriate location. The following
are standards that will help you choose an
appropriate location for the unit.
Proper installation locations meet the
following standards:
Enough room exists for installation and
maintenance.
Enough room exists for the connecting the pipe
and drainpipe.
The ceiling is horizontal and its structure can
sustain the weight of the indoor unit.
The air inlet and outlet are not blocked.
The airow can ll the entire room.
There is no direct radiation from heaters.
DO NOT install unit in the following locations:
Areas with oil drilling or fracking
Coastal areas with high salt content in the air
Areas with caustic gases in the air, such as hot
springs
Areas that experience power uctuations, such
as factories
Enclosed spaces, such as cabinets
Kitchens that use natural gas
Areas with strong electromagnetic waves
Areas that store ammable materials or gas
Rooms with high humidity, such as bathrooms
or laundry rooms
Maintenance space
Installation place
Left
side
Right
side
Strong and durable ceiling
Indoor unit
>7.9in >11.8in
>0.8in
>0.8in
>11.8in
ni6.09>
Floor
Service access Ceiling
)gniliec on neh
W
(
B
Air outlet
Air inlet
7.9in
11.8in
23.6inx23.6in
Checking orifice

Related product manuals