EasyManua.ls Logo

Boeing 747 - Page 63

Boeing 747
96 pages
Print Icon
To Next Page IconTo Next Page
To Next Page IconTo Next Page
To Previous Page IconTo Previous Page
To Previous Page IconTo Previous Page
Loading...
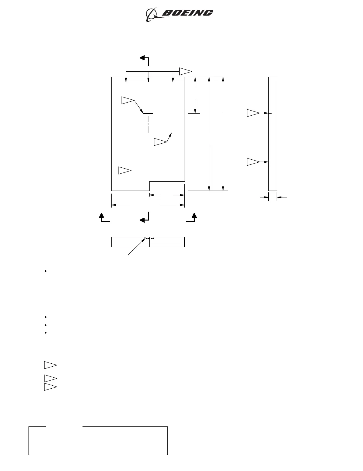
EDM
NOTCH
-
0.25
(6.3)
LONG
X
0.040
(1.02)
DEEP;
X.X
=
±
0.020(0.5)
SURFACE FINISH:
63 RA OR
BETTER
IS
NECESSARY
AT
THE END
OF
THE
HEAT
TIME,
REMOVE
THE
PART FROM
THE
OR IN
A
SALT BATH
OF
EQUAL
TEMPERATURE
FOR
25
MINUTES.
C
2
2
NDT4109
1
1
3
3
A
(5.1)
0.20
A-A
1
3
2
ETCH
OR
STEEL STAMP
THE
STEP
IDENTIFICATION
LETTER
AS
SHOWN
ETCH
OR
STEEL STAMP
THE
REFERENCE
STANDARD
PART
NUMBER
NDT4109
AS
SHOWN
-
MAXIMUM
WIDTH
=
0.030
(0.76)
TOLERANCE:
X =
±
0.5
X.X
=
±
0.25
X.XX
=
±
0.1
X.XX
=
±
0.010(0.25)
X.XXX
=
±
0.005(0.13)
INCHES
ALL
DIMENSIONS
ARE
IN
INCHES
(MILLIMETERS
ARE
IN
PARENTHESES)
MATERIAL:
4330M
OR
4340M STEEL
BAR. THIS
MATERIAL
MUST
BE
NORMALIZED.
2.
1.
HEAT
IN
A
FURNACE
AT
1650
DEGREES
FAHRENHEIT
FOR
35
MINUTES
DECREASE
TO
AMBIENT.
FURNACE
(OR
SALT
BATH)
AND LET THE
TEMPERATURE
OF
THE
PART
TO
NORMALIZE,
FOLLOW
THESE
STEPS:
NOTES:______
B B
A
A
B
D
(90.4)
3.56
(82.5)
3.25
(19.0)
0.75
EDM
NOTCH
1.5
(38.0)
(19.0)
0.75
B-B
______
MILLIMETERS___________
2131048 S0000459178_V1
Reference Standard NDT4109
Figure 2
747
NONDESTRUCTIVE TEST MANUAL
PART 4 54-30-08
Page 7
Nov 15/2015D6-7170
ECCN 9E991 BOEING PROPRIETARY - Copyright © Unpublished Work - See title page for details
EFFECTIVITY
ALL

Other manuals for Boeing 747

Related product manuals