EasyManua.ls Logo

Bosch Rexroth IPC300 - MADAP Studio (Automatic System Diagnostics)

Default Icon
99 pages
Print Icon
To Next Page IconTo Next Page
To Next Page IconTo Next Page
To Previous Page IconTo Previous Page
To Previous Page IconTo Previous Page
Loading...
Software
94
1070 073 822-104 (02.06) GB
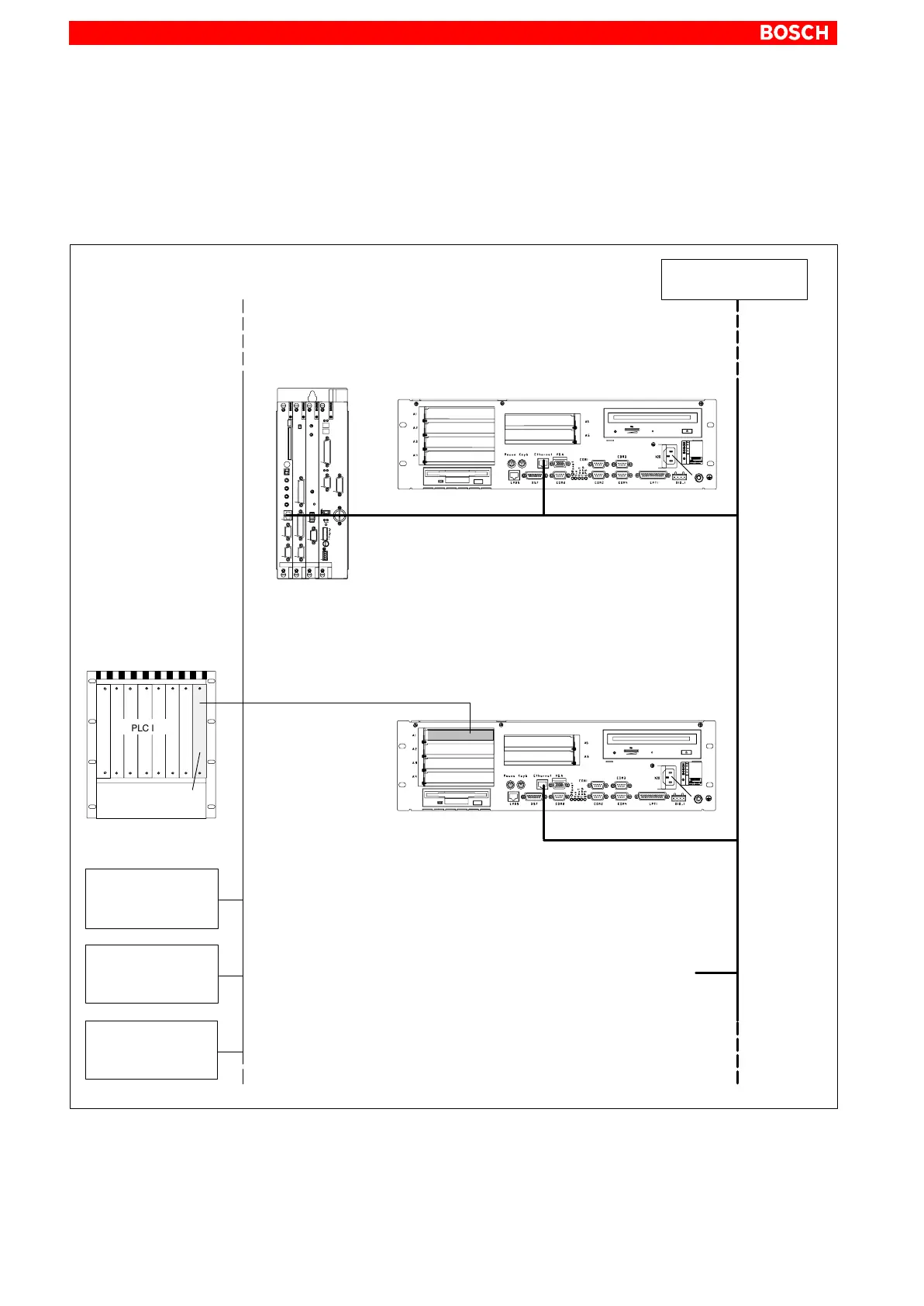
9.3.3 MADAP Studio (automatic system diagnostics)
The IPC / IPC300 is also used as a visual display terminal for automatic
system diagnostics. From any operator station, the system operator can
thus receive statistical information (MDA/PDA) about the entire system.
IPC / IPC300 with Typ3 osa operating
software
Ethernet
Typ3 osa
Additional devices in
Ethernet network, as
required
ËËËËË
PLC I/O
IPC / IPC300 with PLC and MADAP Studio
PROFIBUS-DP
other
PROFIBUS I/O devices:
D B ~ IO
K-DP16DO
D B ~ IO
M-DP
D Decentr. I/O
RM65M-16DP
PROFIBUS-DP
Ethernet
Ethernet
network
Main computer
Ethernet
Ethernet
PROFIBUS-DP
PROFIBUS-DP
EG2/K
PLC expansion module
RM4-DP or
RM2-DP

Table of Contents

Related product manuals