EasyManua.ls Logo

Bosch Benchmark HBL5451UC - De 30 Pulg; Dimensiones para Hornos Dobles de; Instalación con Montaje a Ras del Horno Simple; Instalación Tradicional del Horno Doble de

Bosch Benchmark HBL5451UC
64 pages
Print Icon
To Next Page IconTo Next Page
To Next Page IconTo Next Page
To Previous Page IconTo Previous Page
To Previous Page IconTo Previous Page
Loading...
Español 17
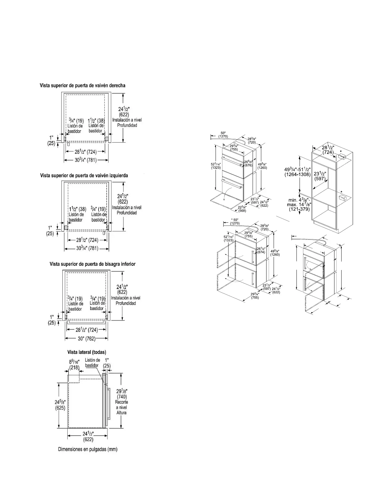
Instalación con montaje a ras del horno
simple de 30 pulg.
La instalación a ras requiere que se adhieran dos listones
laterales dentro del marco del gabinete, empotrados desde la
parte delantera.
Dimensiones para hornos
dobles de 30 pulg.
La abertura del gabinete debe estar a plomo, y la base
debe estar plana y nivelada, y debe ser capaz de soportar
un peso de, al menos, 390 lb (177 kg).
Instalación tradicional del horno doble
de 30 pulg.
29/"
(755)
3
4
52/"
(1323)
1
16
49/"
(1260)
5
8
50"
(1270)
28/"
(720)
3
8
24/"
(622)
1
2
29/"
(755)
3
4
23/"
(597)
1
2
26/"
(674)
1
2

Table of Contents

Related product manuals