EasyManua.ls Logo

Bpt OPHERA - IT-MORSETTIERE

Bpt OPHERA
48 pages
Print Icon
To Next Page IconTo Next Page
To Next Page IconTo Next Page
To Previous Page IconTo Previous Page
To Previous Page IconTo Previous Page
Loading...
OPHERA
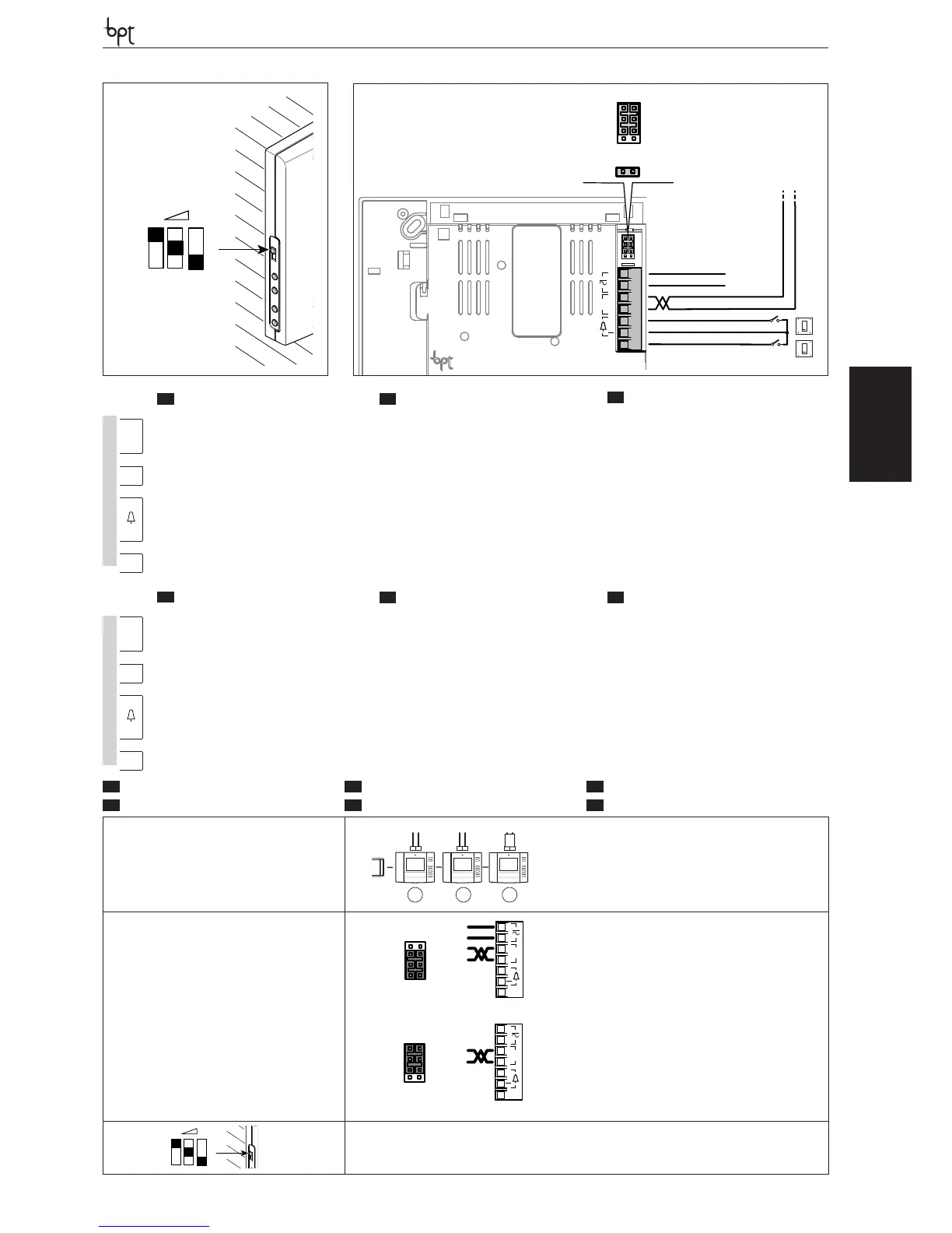
OPHERA LYNEA BASICLYNEANOVAMITHOVAS/100.30
DVC/01
DVC/01 ME
M1M1
SW2
SW1
BUS
LOCAL
B
AL
+
M1
12-16VAC
14-18VDC
OPHERA
A
OPHERA
A
17
IT
SELEZIONI
EN
SELECTIONS
DE
WAHLEN
FR
LECTIONS
ES
SELECCIONES
PT
SELEÕES
SW1(Resistenza di chiusura)
SW1 (Resistive load termination)
SW1 (Schließwiderstand)
SW1 (Résistance de fermeture)
SW1 (Resistencia de cierre)
SW1 (Resistência de fecho)
SW1 SW1 SW1
1 2
3
XDV/304
SW2 (Selezione sorgente di alimentazione)
SW2 (Selects power source)
SW2 (Auswahl der Stromquelle)
SW2 (Sélection source d’alimentation)
SW2(Selección de fuente de alimentación)
SW2(Selección de fuente de alimentación)
B
AL
+
M1
SW2
LOCAL
BUS
Alimentazione separata
Separate power supply
Getrennte Versorgung
Alimentation séparée
Alimentación separada
Alimentação separada
B
AL
+
M1
SW2
BUS
LOCAL
Alimentazione da BUS (max 1 solo derivato)
Power supply from BUS (max. only 1 extension)
Stromversorgung über BUS (max. nur 1 Innensprechstelle)
Alimentation depuis BUS (1 seul poste intérieur max)
Alimentación desde BUS (máx. 1 solo derivado)
Alimentação de BUS (max somente 1 derivado)
Regolazione suoneria-Adjusting the ring-Läutwerkeinstellung-
Réglage sonnerie-Regulación del timbre-Regulação dos sons
IT
MORSETTIERE
EN
TERMINAL BOARDS
DE
KLEMMENBRETTER
~
Da 12÷16 Vca o 14÷18 Vcc
alimentazione locale
Power supply local
From 12÷16 V AC or 14÷18 V DC
Stromversorgung örtlich
zu 12÷16 VAC oder 14÷18 VDC
~
B
Ingresso linea BUS BUS line input Eingang BUS-Leitung
+
Chiamata pianerottolo Doorbell Ruf vom Treppenhaus
AL
Ingresso allarme Alarm input Alarmeingang
FR
BORNIERS
ES
BORNERAS
PT
GUAS DE BORNES
~
Alimentation local
de 12÷16 Vca ou 14÷18 Vcc
Alimentación local
de 12÷16 Vca ó 14÷18 Vcc
Alimentação local
desde 12÷16 Vca ou 14÷18 Vcc
~
B
Entrée ligne BUS Entrada línea BUS Entrada linha BUS
+
Appel depuis le palier Llamada desde el rellano Chamada do patamar
AL
Entrée alarme Entrada alarma Entrada alarme

Table of Contents

Other manuals for Bpt OPHERA

Related product manuals