EasyManua.ls Logo

BRADEN BG4A - Page 8

BRADEN BG4A
26 pages
Print Icon
To Next Page IconTo Next Page
To Next Page IconTo Next Page
To Previous Page IconTo Previous Page
To Previous Page IconTo Previous Page
Loading...
ed.
5. The hydraulic oil lter should have a 10 micron nominal
rating and be full ow type.
6. The vent plug in the motor adapter must be located as
close to top dead center as possible. If the hoist is mounted
on a pivoting surface, the vent plug must remain above the
centerline of the cable drum to prevent gear oil leakage.
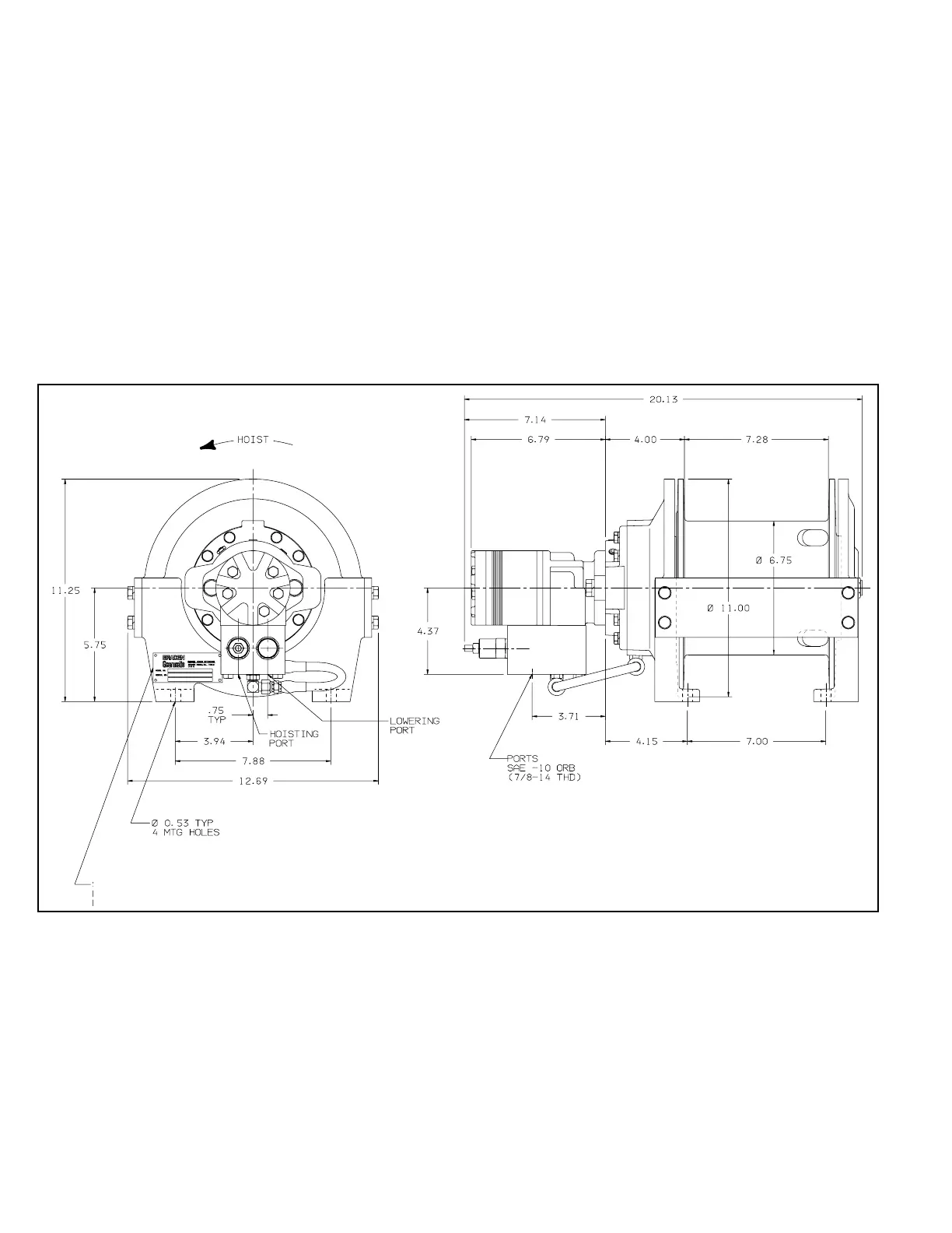
7. Refer to “Dimensional Drawing” for relationship between
drum rotation and which port is pressurized.
Dimensions shown in inches
6
Stamp Name Tag as Follows:
Line 1. Model Number
Line 2. Hoist Serial Number

Related product manuals