EasyManua.ls Logo

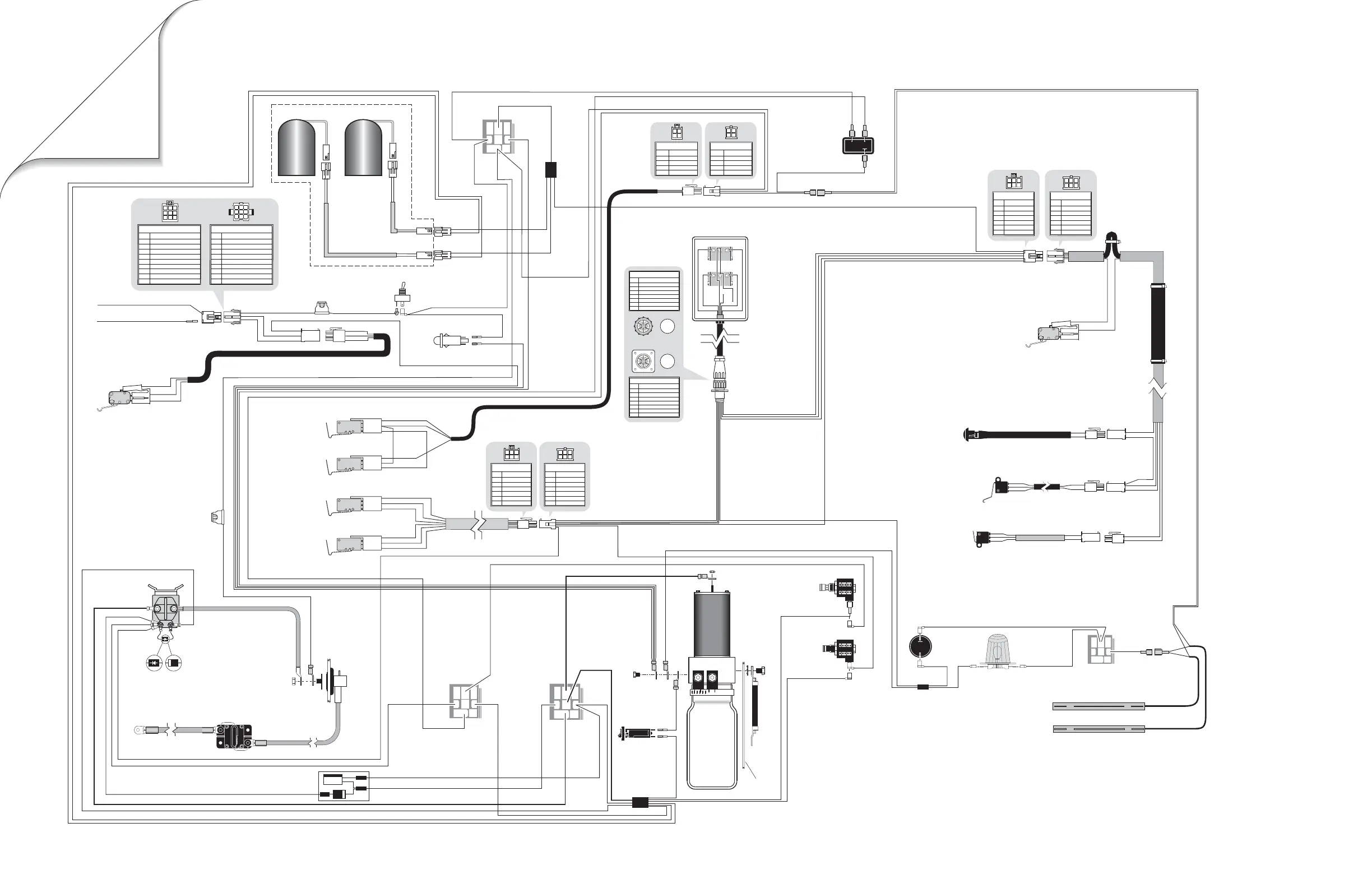
Braun NCL917FIB-2 - Lift Wiring Diagram

Braun NCL917FIB-2
40 pages
Print Icon
To Next Page IconTo Next Page
To Next Page IconTo Next Page
To Previous Page IconTo Previous Page
To Previous Page IconTo Previous Page
Loading...
Unfold for:
Lift Electrical
Schematic
Lift Wiring Diagram
Page 16
Connects to
Vehicle Battery
(+) Positive Post
Lead Wire
13362A
RD(2)
SOLID BUS
Platform Lights (Option)
Circuit Sentry
(
Circuit Breaker)
Bat.
Aux.
Lift
Power Cable
33688A
Pump Module
Power Feed
26082A-4
GN(20)
RD(10)
BK(20)
BK(20)
GN(20)
BK(20)
WH(18)
DK. BU(18)
BK(20)
GN(20)
GN(20)
GN(20)
GN(14)
GN(14)
GN(20)
RD/WH(18)
Ground
WH(18)
GN(18)
SILVER(22)
SILVER(22)
RD/WH(18)
SILVER(22)
GOLD(22)
GOLD(22)
SILVER(22)
Beeper
Threshold
Warning
Light
Back
Plate
(Side view of
solenoids removed
from pump.)
Hydraulic
Pump
B
A
T
A
U
X
GN(20)
GN(20)
GN(14)
Threshold
Strip
Switches
Counter
Interlock
Down
Fold Relief
Flasher
BN(20)
BN(20)
BN(20)
Power
Stud
RD(10)
RD(10)
RD(10)
33337A
VEHICLE SECURE SIGNAL +12V INPUT
RD(4)
RD(4)
RD(18)
RD(18)
31797A
GY/RD(18)
37009A
945-2500NA
37014A
35217A
33659A
RD(18)
)81(DR
RD(18)
DK. BU(18)
GN(20)
BK(18)
)81(KB
45A33013
99A33013
)81(KB
)81(KB
)81(KB
)81(KB
)81(DR
)81(KB
RD(18)
BK(18)
RD(18)
BK(18)
BK(18)
BK(18)
GN(18)
RD(18)
+
-
-
E
GN(20)
GN(20)
GN(20)
+
FUSE HOLDER - BLACK(16)
WHITE(18)
NOT USED
NOT USED
NOT USED
NOT USED
6
5
4
3
2
1
COLORNO.
9-COND WIRE CODE
GREEN(18)
NOT USED
NOT USED
9
8
7
VEHICLE SECURE +12V INPUT
LIFT NOT STOWED GROUND SIGNAL
NOT USED
NOT USED
NOT USED
NOT USED
6
5
4
3
2
1
COLORNO.
9-COND WIRE CODE
LIFT STOWED GROUND SIGNAL
NOT USED
NOT USED
9
8
7
1
23
4
5
6
7
8
9
2
1
1
2
1
2
2
1
1
2
2
1
1
2
2
1
123
456
789
32519A & 31228
LT. BU / GN(18)
LT. BU / GN(18)
RD(18)
GN(10)
REDUNDANT
POWER
RELAY
OR
BU
Fold/Unfold
Switch
WH
BK
GN
RD
L
G
Up/Down
Switch
Switch Box
(As Viewed From Terminal
Side of Switch)
NOT USED
BLACK - 6 COND. (DOWN)
RED - 6 COND. (UNFOLD)
GREEN - 6 COND. (FOLD)
ORANGE - 6 COND. (UP)
BLUE - 6 COND. (-)
WHITE - 6 COND. (+)
6
5
4
3
2
1
COLORNO.
7-COND WIRE CODE
7
NOT USED
WHITE(18)
RED(18)
GREEN(18)
TAN/ORANGE(18)
GREEN(20)
BLACK(20) and BLACK(20)
6
5
4
3
2
1
COLORNO.
7-COND WIRE CODE
7
21
543
76
Lift Power
Switch
Down
Fold
Relief
Up/Fold
Solenoid
+
-
87a
86
87
30
GN(20)
85
GN(20)
LIFT STOWED / NOT STOWED GROUND SIGNAL
(Located in cavity #5 or #9 - see chart above)
31798A
YL/LT. BU(18)
NOTES:
1) JUNCTIONS ONLY OCCUR AT
MARKED INTERSECTIONS.
1
345
67
2
12
345
67
1
345
67
2
Lift
Ready
LED
RD(18)
RD(18)
RD(18)
RD(18)
RD(18)
RD(18)
RD(18)
RD(18)
RD(18)
RD(18)
RD(18)
OR(12)
OR(12)
OR(12) OR(12)
Light
Relay
85
87a
86
87
30
BK(18)
BK(18)
RD(18)
RD(18)
+
-
WH(18)
BK(18)
FOLD
RELAY
85
87a
86
87
30
GN(18)
LT. BU/GN(18)
4
3
2
1
COLORNO.
4-COND WIRE CODE
NOT USED
RED(18)
WHITE(18)
BLACK(18)
34
12
4
3
2
1
COLORNO.
4-COND WIRE CODE
NOT USED
WHITE(18)
BLUE(18)
BLACK(18)
21
4
3
21
5
3
6
4
ORANGE(18)
WHITE(18)
RED(18)
BLUE(18)
4
GREEN(18)
5
BLACK(18)
6
3
2
1
COLORNO.
6-COND WIRE CODE
45
12
6
3
TAN/ORANGE(18)
BLACK(18)
RED(18)
DK. BLUE(18)
4
GREEN(18)
5
BROWN(20)
6
3
2
1
COLORNO.
6-COND WIRE CODE
OR(12)
)4(KB
dnuorGpmuP
22166A
Fuse
SOLID BUS
87a
86
87
30
85
RD/WH(18)
Fuse
BK(20)
GN(20)
DK. BU(18)
BK(16)
BK(16)
GN(18)
WH(18)
WH(20)
Stow
Interlock
Microswitch
BK(20)
GN(20)
WH(20)
C-H
COM
NO
NC
N.O.
N.C.
COM.
33377RA - REAR PUMP
33377FA - FRONT PUMP
1
2
3
1
2
3
21
5
3
6
4
BLACK(20)
BLACK(20)
BLACK(18)
WHITE(18)
4
NOT USED
5
RED(18)
6
3
2
1
COLORNO.
6-COND WIRE CODE
YL(14)
GN(14)
Circuit
Breaker
RD(22)
BK(22)
Outer Barrier
Occupied / Raised
Microswitch
IB Raised
Switch
IB Occupied
Microswitch
RD(20)
BU(20)
BN(20)
BK(20)
VT(20)
VT(20)
WH(20)
VT(20)
BU(20)
BU(20)
BK(20)
BK(20)
RD(20)
BU(20)
BK(20)
NC
COM
NO
Bridging
Microswitch
BU(20)
BK(20)
1
2
NC
COM
NO
33775A
34294A
C-H
COM
NO
NC
VT(20)
VT(20)
N.O.
N.C.
COM.
45
12
6
3
VIOLET(20)
BLACK(20)
BLUE(20)
BROWN(20)
4
NOT USED
5
WHITE(20)
6
3
2
1
COLORNO.
6-COND WIRE CODE
1
2
1
2
1
2
1
2
1
2
33373FA - FRONT PUMP
33373RA - REAR PUMP
or
Note polarity of diode.
It must be oriented as shown
relative to the GN(20) wire above.
Detail shows two different styles
of diode identification.
Up
Microswitch
Unfold
Microswitch
GN(18)
BK(18)
WH(18)
BU(18)
OR(18)
RD(18)
Partial Fold
Microswitch
NO
COM
NC
Threshold / Alarm
Microswitch
BK(18)
4
GN(18)
GN(18)
BU(18)
WH(18)
WH(18)
N.O.
COM.
N.C.
NO
COM
NC
3
N.O.
COM.
N.C.
NO
COM
NC
N.O.
COM.
N.C.
NO
COM
NC
N.O.
COM.
N.C.
2
1

Related product manuals