EasyManua.ls Logo

Bridge BP-90HS-SI EIP - Hydraulic Connections

Default Icon
21 pages
Print Icon
To Next Page IconTo Next Page
To Next Page IconTo Next Page
To Previous Page IconTo Previous Page
To Previous Page IconTo Previous Page
Loading...
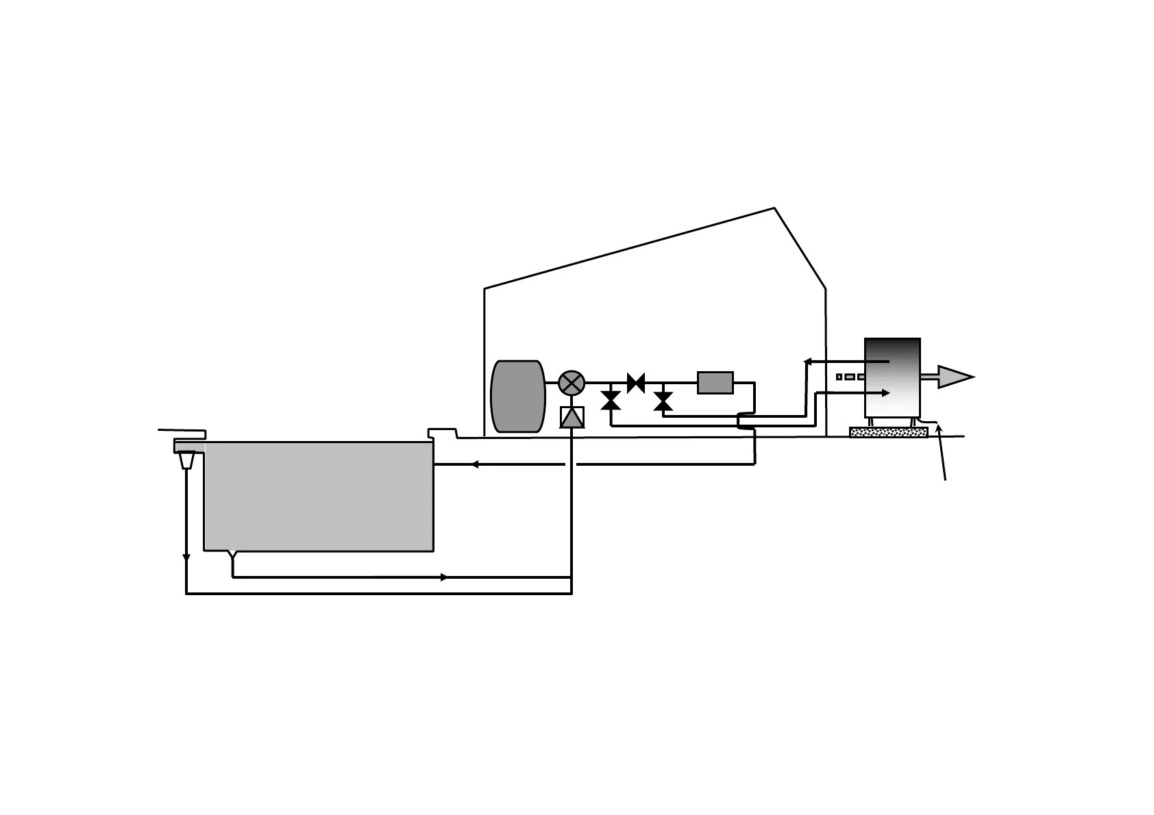
Swimming-Pool
Technical room
Chemical treatment
Blowing
By-pass
Heat Pump
Drain of the
condensates: insert
the plastic elbow in
the hole of
evacuation of the
bottom and connect
the pipe
if need.
Hydraulic connections: To
respect imperatively
Connection is carried out with a by-pass located on
the circuit of filtration, upstream appliances of the
chemical treatment of water.
Connect intake/outlet water PVC pipes DN50 to the
openings of the machine in following the inlet / outlet
indications (grease the worms before screwing)
Filte
r
14