EasyManua.ls Logo

Broan BWT1304SS - Installation de la Hotte

Broan BWT1304SS
36 pages
Print Icon
To Next Page IconTo Next Page
To Next Page IconTo Next Page
To Previous Page IconTo Previous Page
To Previous Page IconTo Previous Page
Loading...
Page 18
MODÈLES BWT1304SS • BWT1304SSB •
BWT2304SS • BWT2304SSB
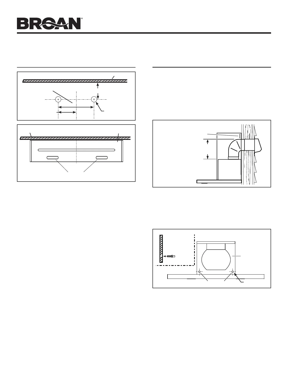
INSTALLATION DU SUPPORT
DE MONTAGE DE CONDUIT
DÉCORATIF SUPÉRIEUR
1. Si aucune pièce de charpente n’est présente, percer deux
trous de 5/16 po aux endroits indiqués. Insérer des douilles
à expansion dans les trous.
2. Centrer le support avec l’emplacement de la hotte au ras
avec le plafond. S’assurer que les fentes du support de
montage de conduit décoratif supérieur sont en bas. Fixer le
support de montage au mur avec deux (2) vis de montage
de n° 8 x 1½ po.
3. Serrer complètement les vis. S’assurer que le support est
fermement appuyé contre le mur.
C
L
Au ras du plafond
Centre de
l’installation
Fentes du support de montage
de conduit décoratif supérieur
C
L
7 /8 po
3 /16 po
1 po
Distance
recommandée
entreles vis
Plafond
Ø 5/16po
TYP.
Plafond
Centre de l’installation
INSTALLATION DE LA HOTTE
(évacuation horizontale seulement)
1. NE PAS enlever à cette étape la pellicule protectrice en
plastique recouvrant la hotte et le conduit décoratif de
cheminée.
2. Placer la hotte sur une table, sur le dos. Utiliser un carton
pour éviter d’endommager la table ou la hotte.
3. Enlever les filtres à graisses en tirant vers le bas sur la
languette métallique de retenue et en basculant les filtres
vers le bas.
4.
Avec précaution, tourner la hotte à la verticale.
INTÉRIEUR DE L’ARRIÈRE
DE LA HOTTE
ENSEMBLE
MOTEUR/
VENTILATEUR
POSITION DESTROUS
VUE
LATÉRALE
5/16po TYP.
5. S’assurer qu’il y a suffisamment d’espace entre le haut de la
hotte et le support de montage inférieur pour laisser passer
le conduit. Le coude doit être situé en dessous du support
de montage inférieur.
6. Aligner la hotte et la centrer au-dessus de son support de
montage. Abaisser doucement la hotte jusqu’à ce qu’elle
s’engage solidement dans le support.
7.
La hotte étant suspendue en place, percer à travers les
deux trous situés à l’intérieur de l’arrière du boîtier de la
hotte à l’aide d’une mèche de 5/16 po. Insérer les douilles
à expansion dans les trous percés (une dans chaque trou).
Installer (2) rondelles et (2) vis n° 8 x 1½ po à travers
l’arrière de la hotte et dans les douilles à expansion. Vérifier
que la hotte est centrée et de niveau. Serrer complètement
les vis.
8. Pour remettre en place les filtres à graisses, aligner les ergots
arrière des filtres dans les fentes de la hotte. Tirer le loquet
vers le bas, pousser un filtre à la fois pour le remettre en
place, puis relâcher. Vérifier que les filtres sont bien en place.
11¾ po
MAX.
SUPPORT DE
MONTAGE DU
CONDUIT DÉCORATIF
INFÉRIEUR

Related product manuals