EasyManua.ls Logo

Broan BWT1304SS - Page 29

Broan BWT1304SS
36 pages
Print Icon
To Next Page IconTo Next Page
To Next Page IconTo Next Page
To Previous Page IconTo Previous Page
To Previous Page IconTo Previous Page
Loading...
Página 29
MODELOS BWT1304SS • BWT1304SSB •
BWT2304SS • BWT2304SSB
C
L
HD1221
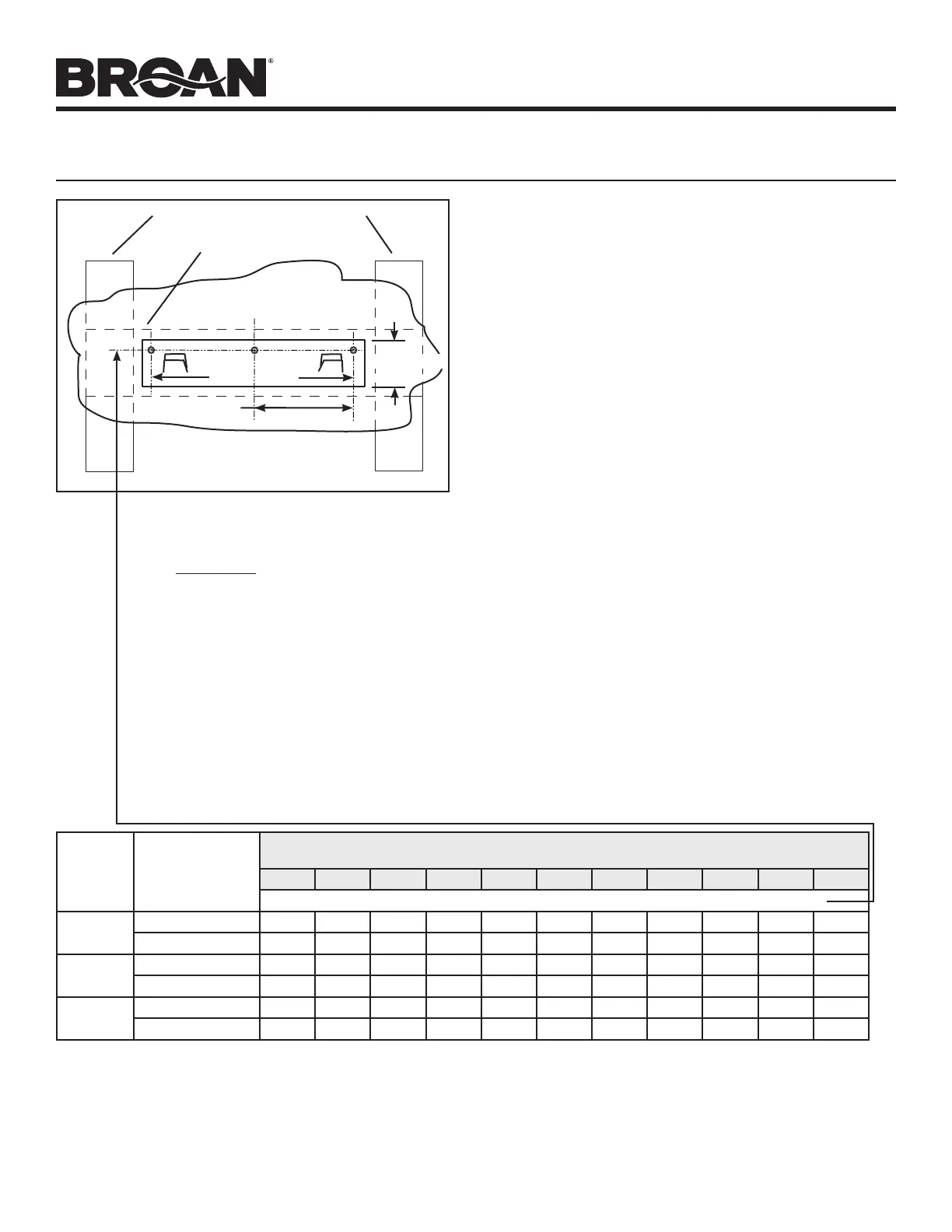
INSTALE EL SOPORTE DE MONTAJE DE LA CAMPANA
1. Construya un bastidor de madera en la pared
que quede al ras de la superficie interior de los
montantes de la pared.
Asegúrese de que:
a) El bastidor esté centrado en el lugar de la
instalación.
b) La altura del bastidor permita fijar el
soporte de montaje en el bastidor dentro de
las dimensiones mostradas.
2. Después de terminar con la superficie de la
pared, centre con cuidado y nivele el soporte de
montaje de la campana, y asegúrelo al bastidor
de la pared con tres (3) tornillos de montaje de
8 x 1½pulg. Apriete totalmente los tornillos.
NOTA: No use taquetes para placa de yeso.
41
7
/8 pulg. = parte inferior de la campana,
30pulg. arriba de la estufa
MARCO DETRÁS DE LA
PLACA DE YESO
MONTANTES DE PARED
NOTA:
La distancia mínima de la campana sobre la superficie de la estufa no debe ser menor de 26 pulg.
Las distancias mayores de 36 pulg. sobre la superficie de la estufa se dejan a criterio de la persona que hace la instalación y del
usuario, siempre y cuando la altura del techo y la longitud del tubo de humos lo permitan.
NOTA:
En los cielos rasos de 8 pies
La distancia de la campana arriba de la estufa es:
Mínima de 26 pulg., máxima de 36 pulg. (para la descarga
para sistemas sin conductos y con conductos).
En los cielos rasos de 9 pies
La distancia de la campana arriba de la estufa es:
Mínima de 32 pulg., máxima de 36 pulg. (para la descarga
para sistemas sin conductos y con conductos).
En los cielos rasos de 10 pies
La distancia de la campana arriba de la estufa es:
Mínima de 32 pulg., máxima de 36 pulg. (para la descarga
para sistemas sin conductos y con conductos).
NOTA: Los cielos rasos de 10 pies requieren una
extensión del tubo de humos de 10 pies, modelo
FXN53SS para instalaciones con conductos o sin
conductos (se compra por separado).
UBICACIÓN DEL SOPORTE
DEMONTAJE (POR ARRIBA DE
36 PULG. DE LA SUPERFICIE DE LA ESTUFA)
10/16 pulg.
5/
32 pulg.
1
9
16 pulg.
ALTURA
DEL CIELO
RASO
CONFIGURACIÓN
DISTANCIA DE LA CAMPANA POR ENCIMA DE LA SUPERFICIE DE LA ESTUFA DE 36” DE ALTA
26” 27” 28” 29” 30” 31” 32” 33” 34” 35” 36”
UBICACIÓN DEL SOPORTE DE MONTAJE POR ENCIMA DE LA ESTUFA DE 36” DE ALTA
8 PIES
CON CONDUCTOS
37-7/8” 38-7/8” 39-7/8” 40-7/8” 41-7/8” 42-7/8” 43-7/8” 44-7/8” 45-7/8”
--- ---
SIN CONDUCTOS
37-7/8” 38-7/8” 39-7/8” 40-7/8” 41-7/8” 42-7/8”
--- --- --- --- ---
9 PIES
CON CONDUCTOS --- --- --- --- --- ---
43-7/8” 44-7/8” 45-7/8” 46-7/8” 47-7/8”
SIN CONDUCTOS --- --- --- --- --- ---
43-7/8” 44-7/8” 45-7/8” 46-7/8” 47-7/8”
10 PIES
CON CONDUCTOS --- --- --- --- --- ---
43-7/8” 44-7/8” 45-7/8” 46-7/8” 47-7/8”
SIN CONDUCTOS --- --- --- --- --- ---
43-7/8” 44-7/8” 45-7/8” 46-7/8” 47-7/8”

Related product manuals